Sede Central de Pull & Bear, La Coruña
Batlleiroig- Tipo Sede / oficina Tienda
- Fecha 2016
- Ciudad Narón (La Coruña)
- País España
- Fotografía Antonio Navarro Wijkmark
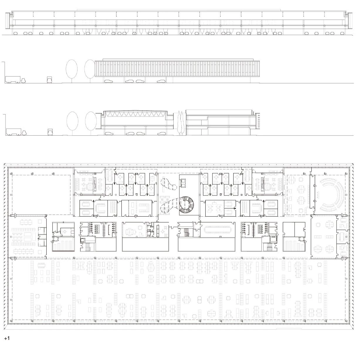
Como en la experiencia previa de Massimo Dutti, el proyecto plantea una estructura palafítica abierta que permite ubicar en planta baja, además del acceso al edificio, el aparcamiento de vehículos.
La planta se organiza en tres franjas longitudinales: la central alberga cuatro núcleos de accesos y servicios, con cuatro patios para iluminación y ventilación. Las otras dos contienen las áreas de trabajo. La orientada a norte se destina al diseño y desarrollo de producto. Con 37 metros, es la de mayor anchura, y totalmente diáfana. Se ilumina de forma natural a través de la fachada acristalada. La orientada a sur acoge los usos que requieren compartimentación —salas de visita, showroom, patronaje, office, e-commerce—, y el vestíbulo a doble altura, una escalera abierta y los ascensores acristalados. Dada la baja incidencia solar en la zona, las fachadas están completamente acristaladas. Aún así, la este y la oeste se protegen con lamas verticales, y la sur con lamas horizontales.
El edificio ha obtenido, al igual que el de Massimo Dutti, la calificación LEED Oro que otorga el USGBC (United States Green Building Council) en cuanto a sostenibilidad y ahorro energético, destacando la utilización de patios, las pieles tecnológicas y el tratamiento de la planta baja como espacio exterior ventilado con función de aparcamiento.










Arquitectos Architects
Batlle i Roig Arquitectura
Enric Batlle, Joan Roig, Albert Gil
Colaboradores Collaborators
Miriam Aranda, Carla Cadavid, Beatriz Barral, Arquitectas (arquitectos architects); Diana Calicó, Marc Torrella (arquitectos técnicos quantity surveyor); Dolors Feu (ingeniera técnica agrícola y paisajista technical agricultural engineer and landscape architect); Maria Duran (BIM manager); Static Ingeniería S.L. (ingeniería de estructuras structural engineering); DM (ingeniería de instalaciones mechanical engineering)
Promotor Developer
Inditex
Contratista Contractor
Goa Invest
Superficie construida Floor area
27.162 m²
Fotos Photos
Antonio Navarro Wijkmark