Rehabilitación DZR en Madrid, de nave industrial a casa fenomenológica
ba-rro- Tipo Rehabilitación Vivienda
- Fecha 2025
- Ciudad Madrid
- País España
- Fotografía Maru Serrano
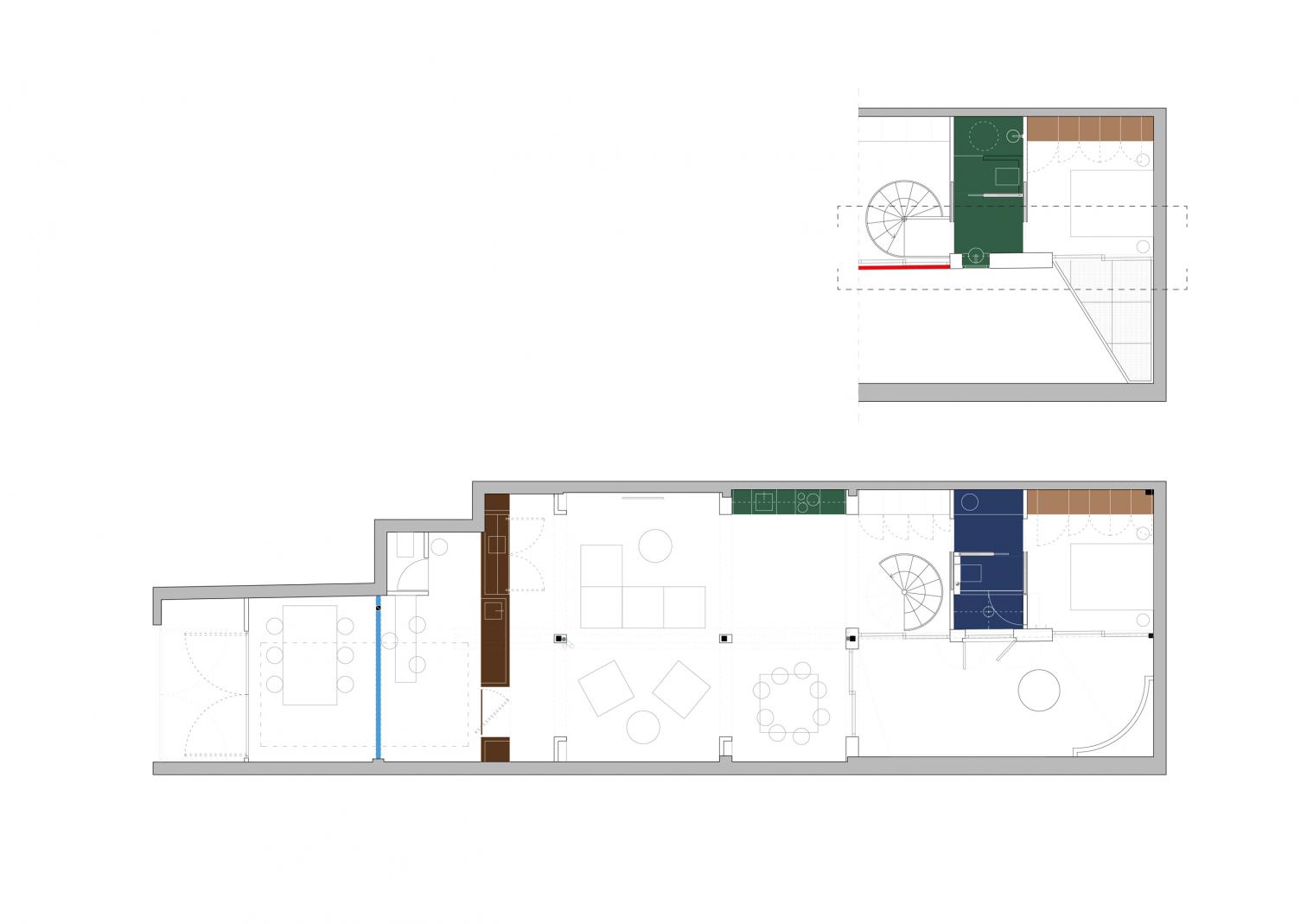
DZR es la rehabilitación de una nave industrial existente en el distrito madrileño de Carabanchel, transformada en una vivienda de 174 m² que explora nuevas formas de habitar. El proyecto parte de un antiguo lavadero de coches para dar lugar a un espacio híbrido, donde los usos domésticos conviven con actividades vinculadas a la calle: de oficina o taller artístico, con posibilidad de acceso público, de pequeña cafetería a espacio expositivo o de eventos. Esta condición flexible permite que la vivienda se adapte a distintas situaciones y ritmos de uso.
La fachada se integra en el contexto urbano mediante un cerramiento metálico similar a los presentes en esa misma calle, pero introduce un sistema de apertura y plegado que modifica su relación con el exterior. Dos capas regulan esta transición: una puerta interior de vidrio y una puerta exterior metálica, cuya combinación permite distintos grados de exposición, desde el cierre total hasta la apertura completa hacia la calle.
En el interior, el proyecto propone un espacio continuo, abierto e isótropo, que se articula mediante elementos coloridos y volúmenes sin un programa fijo. Una secuencia de falsos pórticos oculta instalaciones e irregularidades constructivas, aportando orden y ritmo. El resultado es un espacio fluido, demarcado con límites ambiguos que generan ambientes indeterminados, experimentales y lúdicos, donde la pregunta no es cuántas estancias existen, sino cómo se habitan.


















