Plan urbano TEDA, Tianjin
MVRDV- Tipo Paisajismo / Urbanismo Plan director Masterplan
- Fecha 2004 - 2009
- Ciudad Tianjin
- País China
- Fotografía LOTAN Rob't Hart
Sobre una macromanzana de la ciudad de Tianjin, el plan urbano TEDA se concibe para aumentar la densidad de un fragmento de tejido combinando la construcción horizontal y la construcción en altura. En las ciudades chinas, una gran parte de los barrios tradicionales han sido reemplazados por los desarrollos urbanos; la rapidez con que estos cambios se llevan a cabo deriva, consecuentemente, en la eliminación de las trazas de la ciudad antigua y y la imposición de una nueva estructura urbana sin vínculos físicos ni históricos con sus preexistencias.
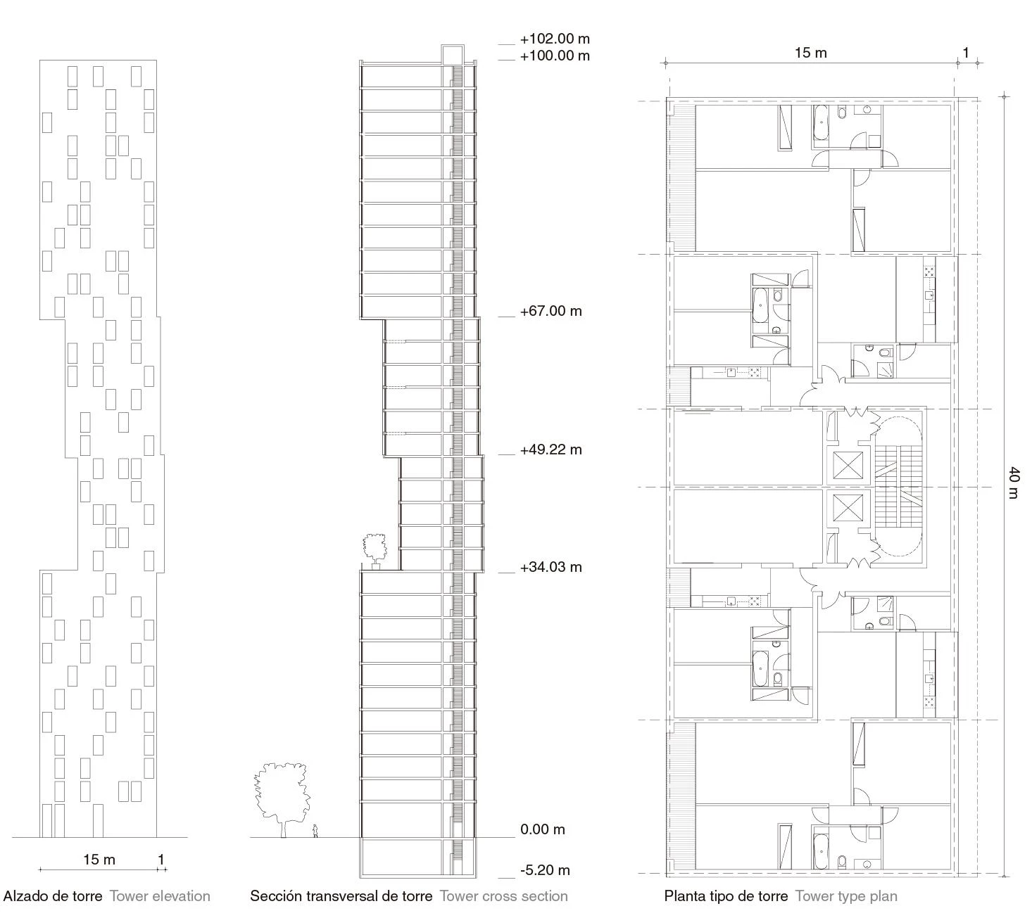
En el caso de TEDA, la reacción al contexto inicial es uno de los puntos de partida. El proyecto conserva una gran parte de los árboles alineados a los lados de las calles antiguas, por lo que los ejes del trazado tradicional sirven como linderos para delimitar los solares de los nuevos edificios. Con el objetivo de alcanzar la densidad requerida para el proyecto, éste acoge una mezcla de tipologías de torres y construcciones de baja altura, en una proporción del 75% y el 25%, respectivamente. Cada torre se acompaña de una plaza que esponja el tejido y su posición busca maximizar la luz y el espacio para las construcciones bajas. Éstas, por su parte, se organizan según dos tipologías: la casa patio más típica, y la vivienda adosada de tres o cuatro alturas.















Obra Work
TEDA Urban Fabric
Cliente Client
TEDA Vantone Real Estate Co. Ltd.
Arquitectos Architects
MVRDV/Tianjin Architects & Consulting Engineers
Colaboradores Collaborators
Jacob van Rijs with Stefan Witteman, Wenchian Shi, Franziska Meisel, Johannes Schele, Sven Thorissen, Rune Boserup, Tie Ying Fang and Joana Gomes
Superficie construida Built-up area
280000 m² (vivienda y comercio housing and retail space)
Fotos Photos
LOTAN; Rob’t Hart