Oficinas en Pirque
MAPAA- Tipo Sede / oficina Comercial / Oficina
- Material Hormigón
- Fecha 2018
- Ciudad Pirque
- País Chile
- Fotografía Pablo Casals-Aguirre
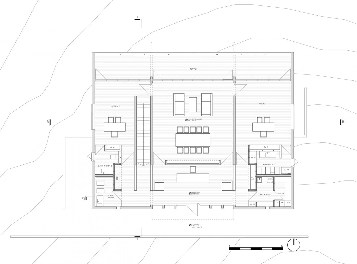
En un ribazo que domina el fértil valle del Maipo, la firma chilena MAPAA ha proyectado las pequeñas oficinas de una empresa familiar, contenidas en tres crujías que se levantan mediante soportes apantallados sobre la ladera y cubiertas con bóvedas de cañón ejecutadas en hormigón visto, haciendo eco de las bodegas subterráneas de la tradición vitícola local. Dos espacios de trabajo funcionan de manera independiente aunque quedan conectados a través de una sala central para reuniones y una terraza que se abre a las viñas del entorno.











