Neues Museum, Berlín
David Chipperfield Architects- Tipo Rehabilitación Cultura / Ocio
- Fecha 1997 - 2009
- Ciudad Berlín
- País Alemania
- Fotografía Johannes Bennke Achim Kleuker
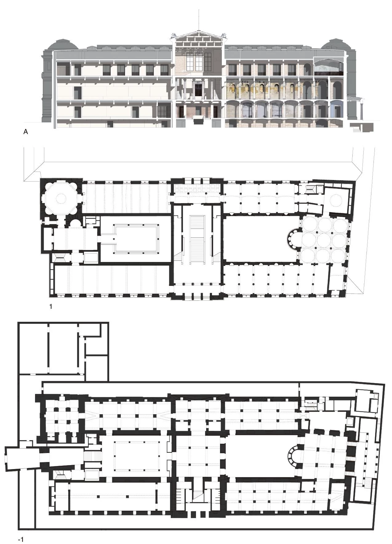
En 1997 el estudio David Chipperfield Architects resultó ganador del concurso internacional para la restauración del Neues Museum de Berlín. El edificio, construido entre los años 1841 y 1859 por el arquitecto Friedrich August Stüler, forma parte de la ambiciosa ordenación de la Isla de los Museos de Berlín impulsada bajo el reinado de Federico Guillermo IV, en el que un excepcional conjunto de museos de arte y arqueología debían consagrarse al redescubrimiento del arte clásico en el corazón de la antigua capital de Prusia.
El Neues Museum, concebido en un principio como extensión del vecino Altes Museum, obra del maestro de Stüler, Karl Friedrich Schinkel, fue considerado en su momento, gracias a su imponente construcción y rica decoración interior, el edificio prusiano más representativo de su época. Rodeado en la actualidad por otros cuatro museos ya reconstruidos, el Neues Museum es el único edificio de la Isla que permaneció en ruinas durante las casi cinco décadas que siguieron a la II Guerra Mundial, un contraste que evoca convincentemente una poderosa idea de decadencia histórica.
El edificio presenta, pese a ello, muy diferentes grados de destrucción en su interior. Ciertas partes han sobrevivido casi por completo, con elaborados acabados y techos con frescos prácticamente intactos, mientras que otras existen tan sólo como envolventes de un enorme vacío. La fuerza inherente a la ruina procede, en gran medida, de este esqueleto expuesto de ladrillo que rodea el edificio y que, 150 años después de ser concebido, le confiere la indeleble presencia de una pintoresca ruina clásica.
Con el objetivo de conservar el poder evocativo de este espacio, la restauración del Neues Museum sigue un principio de conservación más que de reconstrucción. El diseño pretende devolver tan sólo el contexto necesario al edificio para que su estructura de conjunto y la secuencia de espacios que contiene sean legibles. Con ese fin, se recuperan las desaparecidas ala noroeste y la crujía sudeste del edificio, se reestablece la secuencia lineal de espacios, y se diseñan escaleras y patios manteniendo ciertos elementos propios al estado de decadencia del edificio. También se hará descender el nivel de cimentación, proporcionando un nuevo espacio expositivo bajo rasante y conectando las salas de este nivel con los museos adyacentes trata, en definitiva, de que el Neues Museum y su colección de antigüedades egipcias puedan ubicarse en la estrecha franja que media entre la reconstrucción no historicista y la preservación monumentalizada.




































Cliente Client
Stiftung Preussischer Kulturbesitz / Bundesamt für Bauwesen & Raumordnung
Arquitectos Architects
David Chipperfield Architects
Colaboradores Collaborators
C. Abel, P. Auer, A. Baumann, T. Benk, J. Bennke, F. Borho, N. Bredalla, D. Bruns, K. Buchholz, J. Bunje, D. Chipperfield, M. Duleba, A. Dunham, K. Gursch, H. Eggers, M. Fiegl, A. Flohrschütz, A. Fonteyne, R. Foster, M. Freytag, A. Fritzsch, I. Heide, A. Hengst, M. Hohmann, I. Karig, M. Kaune, M. Kley, R. Krause, H. Langston-Jones, M. Maire, C. Marx, M. Mathias, W. Mayer-Biela, P. McInerney, I. McKnight, C. Melzer, V. Mommens, G. Morgan-Harris, H. Müller, R. Nys, P. Pfeiffer, M. Pongratz, M. Randel, M. Reichert, M. Rohde, F. Rusch, D. Saik, E. Saleina, S. Sandberger, E. Schad, A. Schlegel, A. Schwarz, L. Schwind, H. Shin, G. Smith, F. Steinbächer, H. Stummel, D. Suradny, B. Witt, G. Zampieri, M. Zogrotzski; J. Harrap, C. Wilson
Consultores Consultants
Julian Harrap: J. Harrap, C. Wilson (restauración restoration architect); Pro Denkmal: U. Bennke, J. Bunje, W. Frey, J.Schröder, T. Bremen (supervisión de restauración restoration supervision); Levin Monsigny Landschaftsarchitekten: A. Hermening, M. Levin, N. Levin, L. Monsigny (paisajista landscape architect); Ingenieurgruppe Bauen: G. Eisele, M. Filian, S. Glomb, Ke. Gscheidle, D. Rützel, S. Rosenberg, K. Schmidt, J. Seiler (estructura structure engineer); Jaeger, Mornhinweg+Partner Ingenieurgesellschaft: X. Calvo, E. Göppel; Volkmar Grossman Kunst und Museumsschutz Beratungs- und Planungs- GmbH: J. Buchholz, W. Fuchs, J. Haack, L. Henske, W. Liebert, T. Schöne (instalaciones service engineer); Kardoff Ingenieure Lichtplanung (iluminación lighting); Architetto Michele de Lucchi S.r.L (exposición exhibition); Lubic & Woehrlin Architekten (dirección de obra site supervision); Ernst & Young, Prof. Weiss & Partner Projektsteuerungs-mbH (gestión controlling); Nanna Fuetterer (aparejador quantity surveyor)
Fotos Photos
Johannes Bennke, Achim Kleuker