Museo Peter Dass, Alstahaug
Snøhetta- Tipo Cultura / Ocio Museo
- Fecha 2001 - 2007
- Ciudad Alstahaug
- País Noruega
- Fotografía Marte Garmann Johnsen Nil Arbok Åke E:Son Lindman
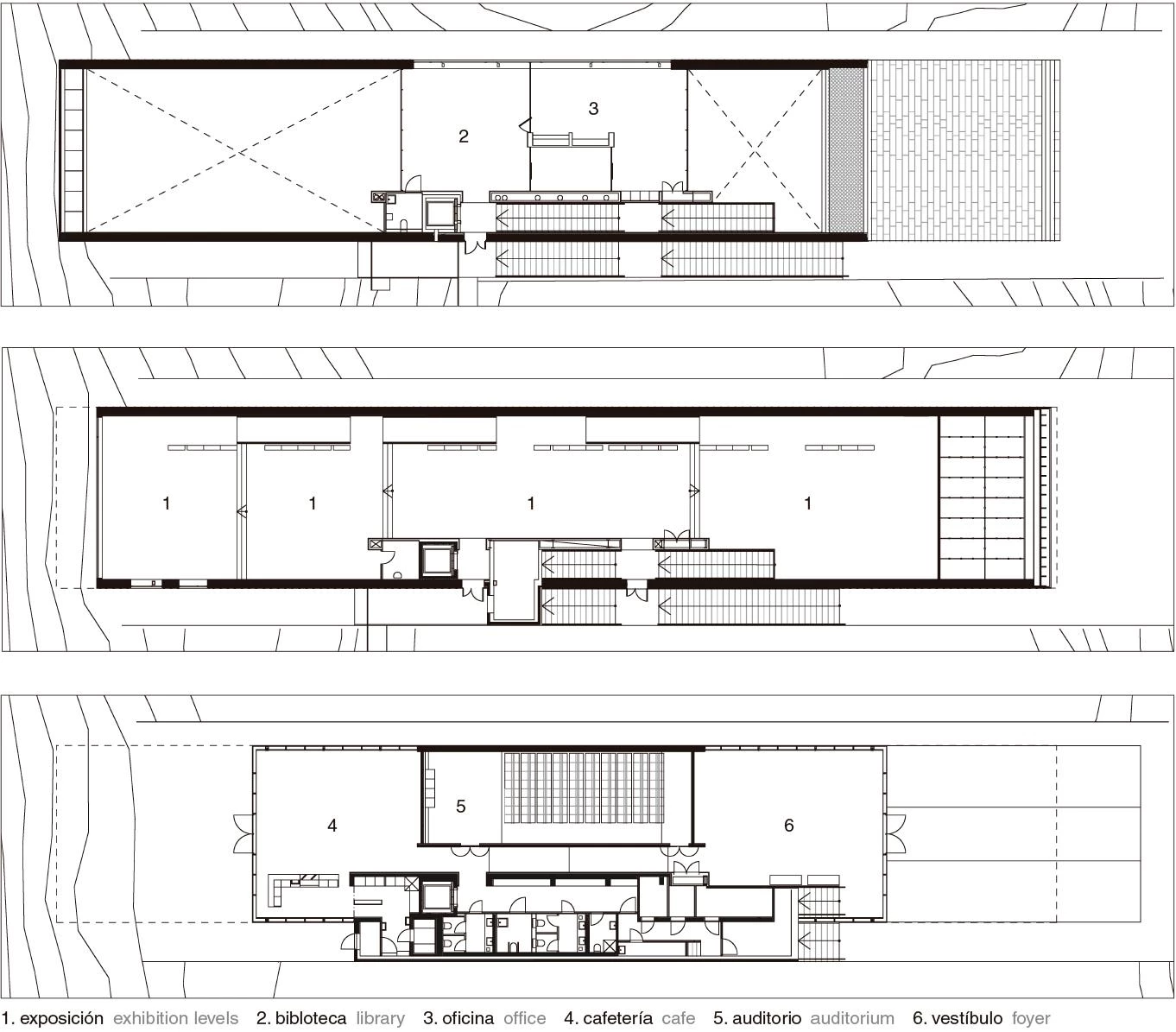
Petter dass (1647-1707) es uno de los más importantes y respetados poetas noruegos. Fue también el pastor parroquial de la iglesia del pequeño pueblo de Alstahaug en la provincia noruega de Nordland, lugar donde muere y donde se construye, en su nombre, este museo de más de 1.350 m2. El proyecto se define por la decisión de ocultar el edificio en la roca para integrarlo en este emplazamiento de gran carga histórica. Para ello se hace un corte en la montaña dejando una imponente grieta de 70 x 15,5 metros y estableciendo una nueva cota del terreno. El volumen se encaja entonces en esta garganta artificial dejando dos estrechos pasajes que flanquean el museo longitudinalmente, y se definen por la roca tallada y el vidrio de cada una de sus paredes. Por su parte, los extremos de la intervención enmarcan el cielo por un lado y la iglesia por otro, relacionando visual y conceptualmente el pasado y el futuro representados por la arquitectura histórica y el firmamento respectivamente. Esta perseguida integración con el entorno destaca en las épocas de nieve, en las que la cubierta curva del museo se convierte en una ladera nevada y desaparece de la vista, sólo dejándose percibir por las pronunciadas grietas que protegen el edificio y se iluminan en la noche, y por el gran voladizo que se asoma al mar.












Client
KF Petter Dass Eiendom
Architects
Architect, Landscape & Interior: Snøhetta
Collaborators
Alstahaug Kommune. Ingerniør Per Rasmussen. Norconsult AS. VVS Plan AS. Brekke & Strand AS
Contractor
EntrepreTOR AS. Lønnheim Entreprenør AS. Veidekke Entreprenør AS
Surface area
1.350 m²
Photos
Aake E. Lindman, Marte Garmann Johnsen, Snøhetta, Nil Arbok