Museo de Arte Pérez, Miami (en proyecto)
Herzog & de Meuron- Tipo Cultura / Ocio Museo
- Fecha 2006
- Ciudad Miami (Florida)
- País Estados Unidos
- Fotografía Smith Aerial Photos
El plan de renovación del frente marítimo del centro de Miami define un área destinada al Parque de los Museos, en un emplazamiento privilegiado frente a la bahía. El master plan aprovecha la situación estratégica del lugar junto a la arteria de conexión directa con Miami Beach para coser en paralelo a ella una serie de atracciones y destinos culturales en el límite del parque, entre los que se incluye un museo de arte. El carácter público del museo —algo poco frecuente en la gestión de las colecciones en esta ciudad— supone para el proyecto el reto de integrar las actividades a nivel metropolitano y hacerlas más accesibles para el público general, adquiriendo así una renovada función social como un lugar para la comunidad, extendiendo su programa hacia usos educativos, investigación, creación y eventos.
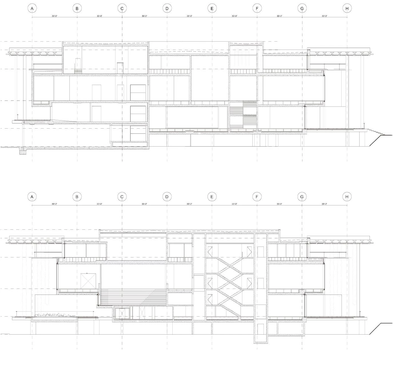
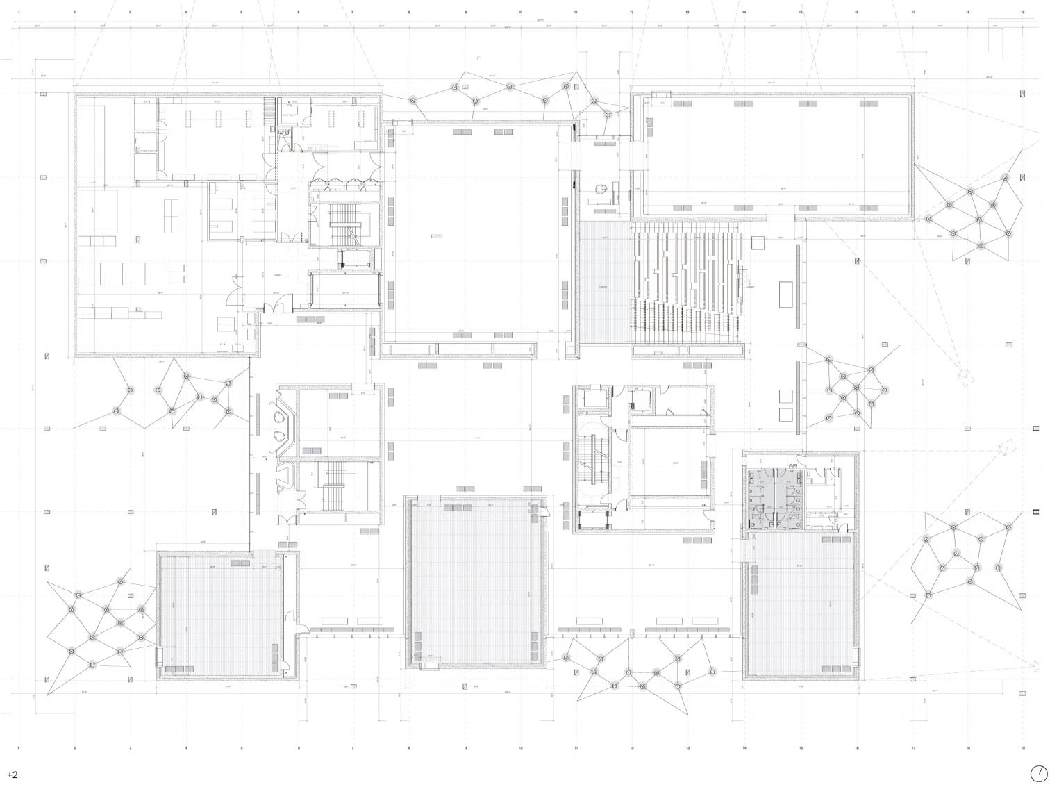
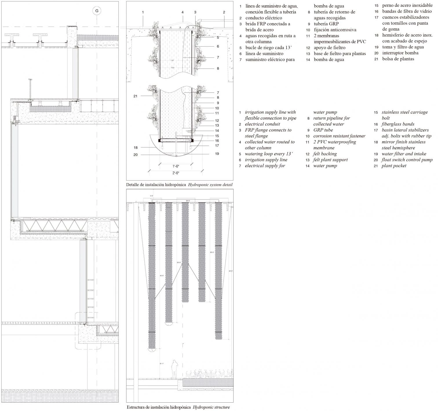
El Museo de Arte Pérez, actualmente en construcción, orienta sus fachadas hacia el parque, la bahía, la ciudad y la plaza de acceso, convirtiéndose en un nuevo hito urbano muy visible en el panorama de Miami. La posición de bisagra entre la ciudad y el parque hace de la relación con el paisaje la dirección de diseño del proyecto. La amabilidad del clima y la potencia de la naturaleza tropical invitan a crear espacios de contemplación en relación con la bahía, donde la gente pueda acudir como parte de las instalaciones del parque. Para ello, el proyecto plantea una densa trama de pilares para soportar un gran pórtico del que cuelgan, como un dosel vegetal, sistemas hidropónicos para plantas tropicales. Este jardín colgante crea un microclima fresco de espacios ‘interiores en el exterior’, en cuyo corazón se establecen las instalaciones del museo. La retícula de pilares se levanta desde el nivel del parking, situado bajo la plataforma y abierto al exterior, y en el tramo intermedio hasta la cubierta se imbrican en ella diversas cajas que, interrelacionadas, contienen los espacios protegidos para el programa. Tanto la estructura como las cajas se realizan en hormigón blanco ya que es un material conveniente para resistir huracanes, una exigencia de la normativa de la zona. La elevación de las cajas también responde a este factor.
Varios tipos de galerías, diseñadas en colaboración con el personal del museo, se distribuyen de forma multidireccional en un esquema concreto y adaptado a las diferentes posibilidades de exhibición de obras —en contraposición a las secuencias lineales corrientes y las cajas blancas anónimas—. La experiencia del arte se extiende a todo el museo, incluidos el aparcamiento o los jardines, y las galerías gozan de amplias vistas al exterior.























Cliente Client
Miami Art Museum, Miami, USA; Paratus Group, New York, USA (director de proyecto project director)
Consultores de diseño Design Consultants: Herzog & de Meuron
Socios Partners: Jacques Herzog, Pierre de Meuron, Christine Binswanger (socio responsable partner in charge).
Equipo de proyecto Project team: Kentaro Ishida (asociado associate), Charles Stone (asociado associate), Stefan Hörner (mánager de proyecto project manager); Joana Anes, Jack Brough, Ida Richter Braendstrup, Margarida Castro, Silja Ebert, Jason Frantzen, Yuko Himeno, Yuichi Kodai, Hugo Moura, Adriana Müller, Mehmet Noyan, Valentin Ott, Jeremy Purcell, Nils Sanderson, Masato Takahashi
Planeamiento Planning
Handel Architects (arquitecto de ejecución executive architect); Arup, Douglas Wood & Associates (estructura structural engineering); Arup, JALRW Engineering Group (ingeniería mecánica mechanical engineering); Transsolar (climatización climate); FRONT (fachada facade); Arquitectonica Geo (paisajismo landscape); Patrick Blanc (jardines colgantes hanging gardens); Arup Lighting (iluminación lighting); Harvey Marshall Berling Associates (acústica A/V acoustics); Stuart-Lynn (estimación costes cost estimator)
Fotos Photos
Smith Aerial Photos