Museo de Arte Italiano, NY
Miguel Quismondo- Tipo Cultura / Ocio Rehabilitación
- Material Hormigón
- Ciudad Nueva York
- País Estados Unidos
- Fotografía Javier Callejas Montse Zamorano
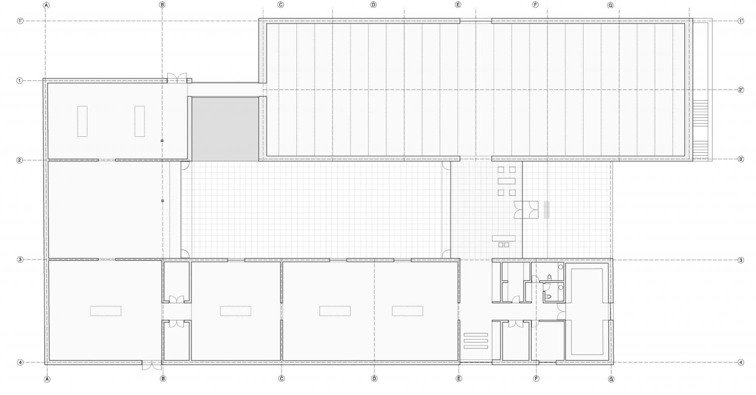
Rehabilitando un antiguo centro de distribución de productos lácteos construido en la década de 1960, el proyecto para el Magazzino Italian Art está pensado para albergar una colección privada de arte italiano de posguerra. El museo, situado en Cold Spring —una localidad a las afueras de Nueva York—, renueva y amplía un edificio en forma de L, que se completa formando un rectángulo en planta y abriendo un patio central para resolver la iluminación y mejorar las circulaciones.



La propuesta hace discurrir una estructura independiente de manera paralela al lado más largo del volumen ya existente, y vincula las dos partes del museo por medio de dos conectores de vidrio que enfatizan la ligereza de la nueva construcción. El viejo almacén se abre, así, hacia el patio, mientras que la ampliación proporciona una vista panorámica de los humedales. El patio central, por su parte, funciona como una ampliación del vestíbulo; y el flujo de circulación se configura, a través de él, como un simple anillo que facilita la creación de un recorrido intuitivo a lo largo de toda la exposición.




Las técnicas y los materiales constructivos empleados en el proyecto son sencillos: el muro de hormigón, encofrado in situ y compuesto por paneles fenólicos, da forma a la piel del nuevo contenedor; la cubierta se resuelve con cerchas metálicas a dos aguas; y las paredes interiores se pintan de blanco para no restar protagonismo a las obras de arte.


Obra Work
Magazzino Italian Art en Nueva York (Estados Unidos) Magazzino Italian Art in New York (United States)
Cliente Client
Nancy Olnick, Giorgio Spanu
Arquitectos Architects
Miguel Quismondo
Colaboradores Collaborators
Jesús Aparicio Alfaro
Estructuras Structures
Michael Carr, PE
Instalaciones MEP
Consulting Engineering Services
Ingeniería civil Civil Engineering
Badey & Watson Surveying & Engineering
Fotos Photos
Javier Callejas; Montse Zamorano