Monasterio de Nuestra Señora de la Victoria en Kijonjo
Localworks- Tipo Religioso / Conmemorativo Monasterio
- Material Ladrillo Cerámico
- Fecha 2021
- Ciudad Kijonjo
- País Uganda
- Fotografía Will Boase
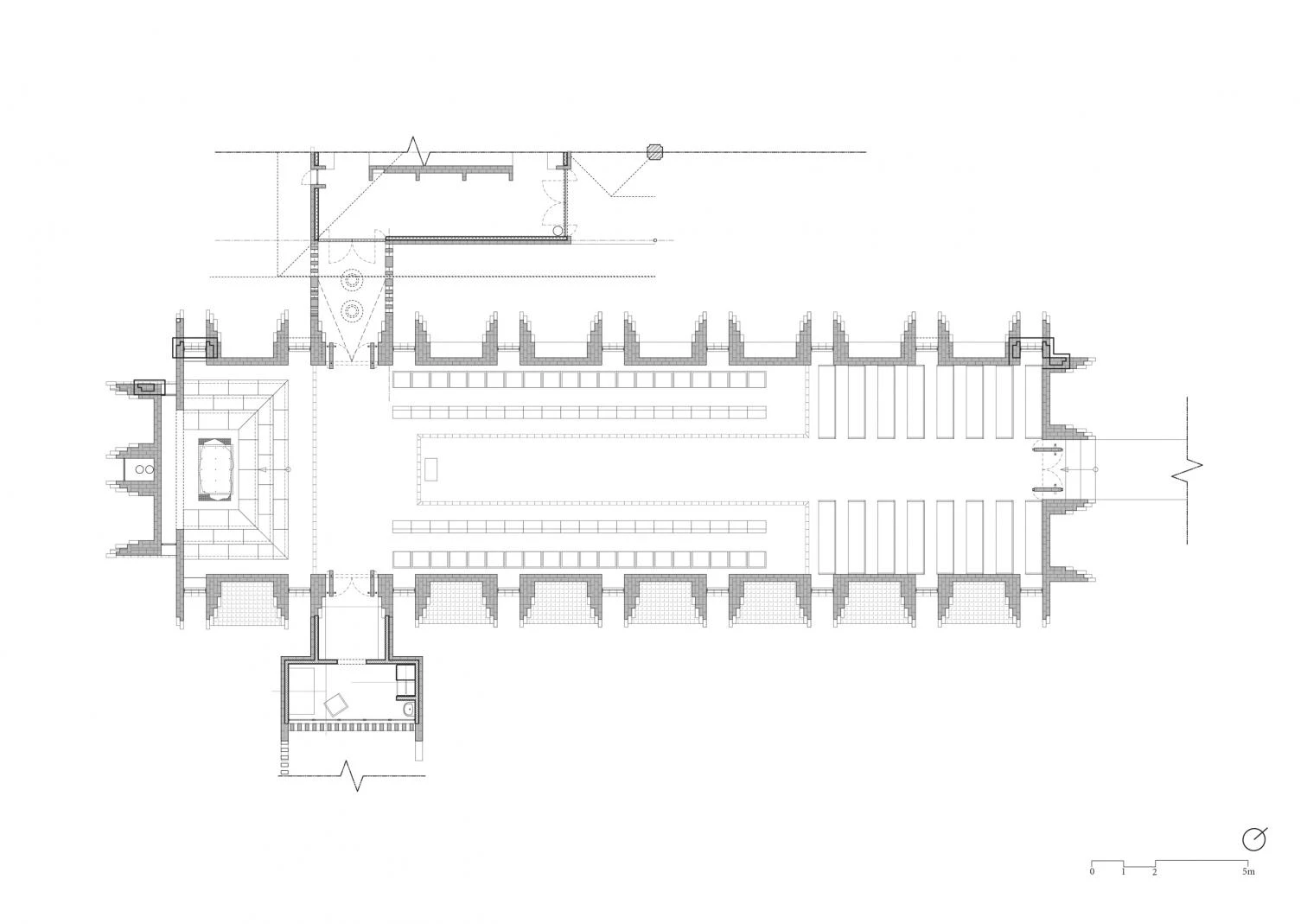
Un conjunto monástico a orillas del lago Victoria da refugio a una comunidad de monjes trapenses que se vio obligada a dejar Kenia a causa de la inestabilidad política en el país.
El conjunto, que incluye una iglesia, un noviciado y una hospedería, responde a la vez al contexto local y a la tradición constructiva de una orden caracterizada por su austeridad y su estricta observancia de la vida contemplativa.
Parapetada bajo una amplia cubierta ventilada, la iglesia es un volumen longitudinal definido por una bóveda de cañón que intercala franjas de ladrillos cocidos con cáscaras de café y piezas de vidrio incrustadas que permiten la entrada de luz.






















Edificio para huéspedes


Edificio para novicios

Obra Work
Monasterio de Nuestra Señora de la Victoria, Kijonjo (Uganda)
Our Lady of Victoria Monastery, Kijonjo (Uganda).
Arquitectos Architects
Localworks.
Contratista Contractor
Cementers; Unique Clay Works (ladrillos bricks).
Superficie Area
2.000 m².
Fotos Photos
Will Boase.