Laboratorios Fabrikstrasse 22, Campus Novartis
David Chipperfield Architects- Tipo Comercial / Oficina Sede / oficina Laboratorio
- Fecha 2010
- Ciudad Basilea
- País Suiza
- Fotografía Simon Menges
El complejo de producción e investigación en Basilea de la farmacéutica Novartis ha sido renovado y ampliado para convertirse en un nuevo campus de referencia entre el Rin y la frontera suiza con Francia. El plan director del conjunto fue trazado por Vittorio Magnano Lampugnani, e incluye edificios de oficinas, así como instalaciones de producción y centros de investigación, que han sido diseñados por diferentes arquitectos.
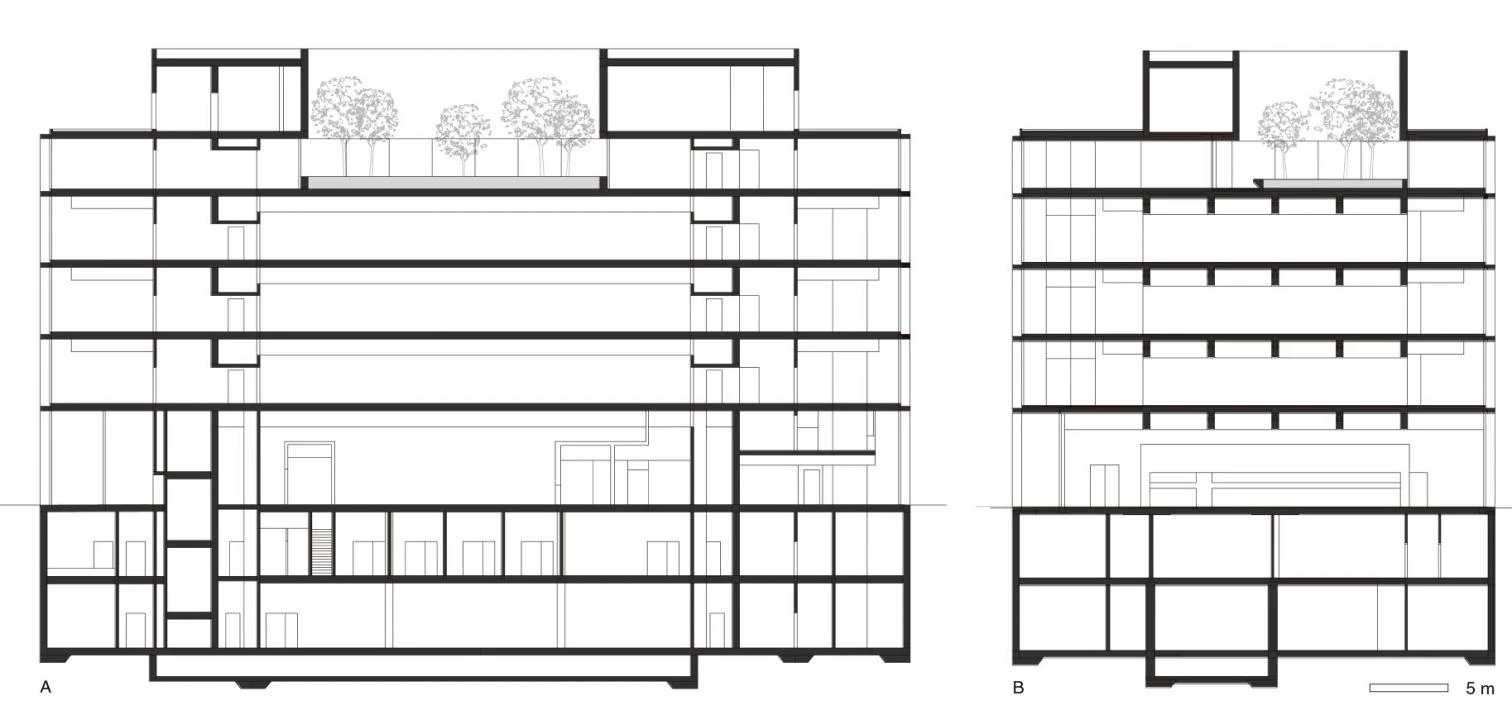
El edificio desarrollado por David Chipperfield Architects está situado en la Fabrikstraße, la arteria principal del campus, y ocupa una posición de referencia dentro del nuevo eje de comunicación que conduce al río en dirección este-oeste. El programa se dispone en cinco niveles, y tanto la superficie en planta y la altura total del volumen edificable como la cota del primer forjado estaban predeterminadas por el plan urbano. Concebido como un ‘laboratorio del futuro’, el proyecto ha sido diseñado como un espacio abierto que permite la colaboración y el encuentro de grupos de trabajo temporales, y que promueve la conexión entre las zonas destinadas a actividades de carácter más experimental con el resto de espacios permanentes.
Para conseguir una planta libre de columnas que permitiera esta distribución interior flexible y adaptable a nuevos modelos de trabajo, se diseñó un sistema de vigas que cubre una luz de veintisiete metros en la parte central entre los núcleos estructurales. La fachada es el otro elemento estructural, y se compone de piezas prefabricadas de hormigón en forma de pilares facetados que se asemejan a una columnata, un motivo formal presente también en otras construcciones del campus. Las caras que forman los pilares alternan acabados lisos y rugosos, y van cambiando su orientación a lo largo del perímetro con el fin de crear un vivo juego de luces y sombras. El cerramiento está formado por paneles de vidrio de grandes dimensiones, situados en la cara interior de la fachada, que proporcionan abundante luz natural a las zonas de trabajo.
A nivel de la calle se encuentra un restaurante rodeado en los lados norte y oeste por un pórtico abierto, un elemento de transición con el espacio público que refuerza la imagen urbana del edificio dentro del conjunto de Novartis. En el interior, una escalera escultórica diseñada por Ross Lovegrove conecta los tres pisos de laboratorios con un nivel superior de oficinas. Esta última planta vuelca a un jardín donde la instalación ‘Molecular (BASEL)’, una obra reciente de Serge Spitzer, añade una nota de personalidad con sus singulares canicas de color verde que contrastan vívidamente con los impecables acabados interiores.








Obra Work
Novartis Laboratory Building
Cliente Client
Novartis Pharma AG
Arquitectos Architects
David Chipperfield Architects Berlin;
David Chipperfield, Harald Müller, Alexander Schwarz (director de diseño design lead) —socios partners—; Christian Helfrich, Robert Westphal (directores de proyecto project architects), Markus Bauer, Wolfgang Baumeister, Lena Ehringhaus, Niccolo Genesio, Gesche Gerber, Ulrich Hannen, Paul Hillerkus, Nicolas Kulemeyer, Astrid Kühn, Sebastian von Oppen, Asa Awad Osman, Martina Pongratz, Stefanie Schleipen, Gunda Schulz (equipo de proyecto project team);
Colaboradores Collaborators
Burckhardt + Partner (ejecución executive architect); OTB, Eurolabors (contratista general contractor); WaltGalmarini (estructura structural engineer); Fact, gb consult (instalaciones services engineer); Gruner (física y acústica del edificio building physics, acoustics); Schweizerisches Institut zur Förderung der Sicherheit (incendios fire consultant); gkp Fassadentechnik (fachada facade consultant); matí Lichtgestaltung (iluminación lighting consultant); Dr. Heinekamp Labor- und Institutsplanung (laboratorio laboratory consultant); Mifflin-Schmid Design (señalética signage); Wirtz International (paisajismo landscape architect); Serge Spitzer, Molecular (BASEL), 2002-2008 (arte artwork); Ross Lovegrove (diseño escalera de laboratorio design laboratory stair)
Fotos Photo
Simon Menges, Ute Zscharnt for David Chipperfield Architects