Instituto Roseta Mauri, Reus
Batlleiroig- Tipo Colegio e instituto Educación
- Fecha 2010 - 2012
- Ciudad Reus (Tarragona)
- País España
- Fotografía Jordi Surroca
El proyecto plantea un volumen de planta rectangular, de 77,40 x 16,50 metros, dispuesto en paralelo a la calle Bernat Desclot, desde la cual se accede a la cocina y a las pistas deportivas. El acceso principal se sitúa en la esquina más cercana al centro urbano, la de Bernat Desclot con Jaume Vidal i Alcover. El edificio se aleja de los límites de la parcela, de forma que todas sus dependencias se relacionan visualmente con las canchas y zonas de juego.
La orientación, con las fachadas principales a noreste y sudoeste, permite organizar cada planta a partir de un corredor central al que se abren a ambos lados las aulas y demás dependencias. Estos corredores parten de un vestíbulo situado en un extremo, abierto a tres alturas, donde se sitúa el acceso principal. Este espacio cualifica el edificio convirtiéndose en su principal zona de relación. Para iluminar los corredores se abren terrazas que funcionan como áreas de estudio o descanso.
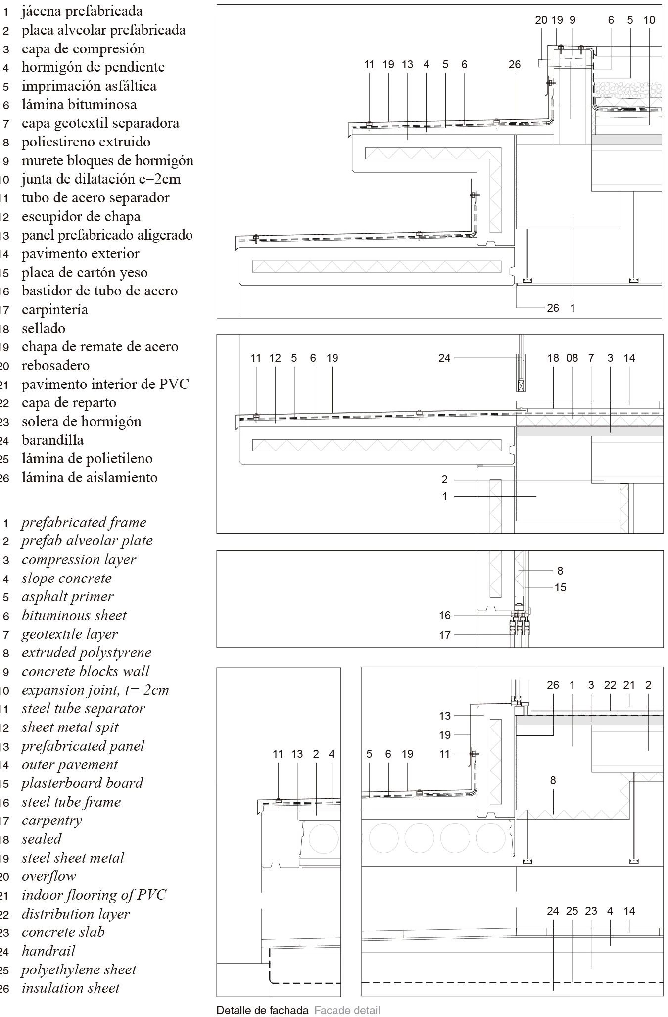
Los cerramientos se resuelven en hormigón prefabricado, con especial atención al control lumínico y acústico de las aulas. Para la protección solar se dispone en cada planta un sistema de lamas orientables lacadas alternativamente en plata y amarillo. Este sistema solo se interrumpe por las terrazas enmarcadas en gris a modo de ventanas a gran escala.











Arquitectos Architects
Batlle i Roig Arquitectura
Enric Batlle, Joan Roig, Albert Gil, Ivan Sánchez
Colaboradores Collaborators
Miriam Aranda, Carla Cadavid, Oriol Vañó, Matteo Lencioni (arquitectos architects); Static ingeniería S.L. (ingeniería de estructuras structural engineering); Consulting Lluis J. Duart SLP (ingeniería de instalaciones mechanical engineering)
Promotor Developer
Gisa, Departament d’Ensenyament de la Generalitat de Catalunya
Contratista Contractor
MJ Gruas
Superficie construida Floor area
3.998 m²
Fotos Photos
Jordi Surroca