Hospital Materno Infantil Gregorio Marañón en Madrid
Rafael Moneo José María de la Mata- Tipo Hospital Salud
- Material Acero Vidrio
- Fecha 1997 - 2003
- Ciudad Madrid
- País España
- Fotografía Luis Asín Michael Moran (OTTO)
Como parte del hospital Gregorio Marañón, la maternidad ocupa una de las manzanas desarrolladas a partir del Plan Castro en el siglo XIX, al este del parque del Retiro. El edificio se inserta en una operación urbana mayor que vincula tres manzanas alineadas con la calle O’Donnell y con un jardín interior como área de relación entre las construcciones antiguas y nuevas de la supermanzana.

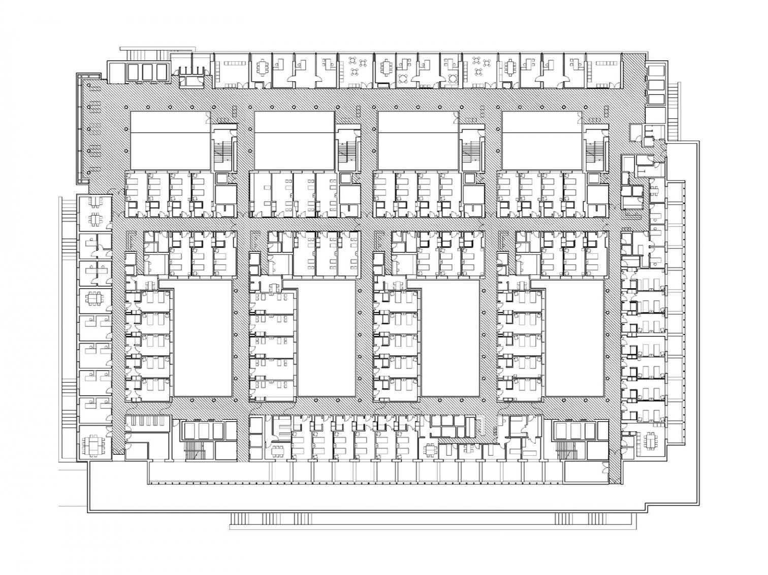
El volumen ocupa toda una manzana del ensanche con una solución compacta, introvertida y unitaria. El complejo programa, que incluye maternidad y hospital pediátrico, se organiza en torno a ocho patios.
El volumen resuelve un programa complejo formado por una maternidad y un hospital infantil, lo que, unido a una situación urbana no menos compleja y a la exigencia de sosiego en los espacios sanitarios, dio pie a una solución introvertida y permeable a la vez. Así, los accesos a los dos hospitales se dispusieron en fachadas opuestas del solar y a distinta cota, gracias al desnivel natural de la parcela. Un cuerpo transparente de acero y vidrio aloja en la planta baja el porche de acceso a la maternidad desde la calle O’Donnell —para lo que se retranquea levemente—, en tanto que otro porche situado en la confluencia de las calles Castelló y Márquez conduce al interior del hospital infantil, en la planta primera.

Una trama de pasillos dispuestos en torno a ocho patios —cuatro transversales y cuatro longitudinales en dos filas paralelas— establece la organización general de las unidades de hospitalización. El nivel +2, compartido por ambos hospitales, alberga los servicios generales —bloques quirúrgicos, unidades de cuidados intensivos y paritorios— y actúa asimismo como enlace entre las áreas de consultas y las de hospitalización, que ocupan tres niveles. Los dormitorios para los médicos de guardia se sitúan en la cubierta. Las urgencias materno-infantiles comparten el acceso rodado y quedan emplazadas en el primer sótano, junto con el área de diagnóstico por imagen. El segundo y último sótano se dedican a los vestuarios de personal, a las instalaciones y a los espacios de suministros.
El vidrio blanco con que se envuelven las fachadas tanto exteriores como de los patios interiores genera en las estancias del hospital una atmósfera calmada donde la luz se convierte en verdadera protagonista: el reflejo de la imagen se diluye, mientras el de la luz permanece intacto. Un marcado despiece horizontal define el cerramiento en cada uno de los paños. Los suelos y zócalos de los corredores se forran de mármol; las salas, de linóleo y las zonas húmedas, de gres. En cada habitación, el recercado del hueco y la persiana mallorquina, ambos de madera de arce, crean un ambiente doméstico, objetivo perseguido también en el mobiliario de acero cromado, que se diseñó ex profeso.
El vidrio blanco de dos centímetros, espejado en la cara interna y esmerilado en la externa, proporciona un ambiente luminoso y sereno en corredores y estancias. El mismo despiece horizontal se repite en patios y fachadas.






Estado previo / Proyecto

Planta tercera


Cliente Client
Hospital General Universitario Gregorio Marañón. Consejería de Sanidad, Comunidad de Madrid
Arquitectos Architects
Rafael Moneo, José María de la Mata
Colaboradores Collaborators
Belén Hermida (arquitecto a cargo del proyecto project architect); Oliver Bieniussa, Rafael Beneytez, Carmen Díez Medina, Jacobo García-Germán, José María Hurtado de Mendoza, Fernando Iznaola, Francisco Padilla, Borja Peña, Sandra Pérez-Nievas, Pablo Perlado, Juan Rodríguez Villa, Christoph Schmid, Tara Solomon, Veronika Weisner (proyecto project); José María Hurtado de Mendoza, Francisco Padilla, Santiago de Molina, Roger Pernas, Gabriel Doménech (obra construction); Carmen del Pino (diseño gráfico, señalética graphic design, signage)
Consultores Consultants
Jesús Jiménez Cañas, Eduardo Gimeno/NB35 (estructura structural engineering); Rafael Úrculo, Estudio de Consultores en Ingeniería de Instalaciones (instalaciones mechanical engineering); Vidal Gutiérrez de Sande, Francisco González Peiró (aparejadores quantity surveyors); Juan de Dios Hernández & Jesús Rey (maquetas models)
Contratista Contractor
UTE Maternidad (ACS / FCC)
Superficie Floor area
50.000m²
Fotos Photos
Duccio Malagamba, Michael Moran/OTTO