Museo Abby Kortrijk en Cortrique
Barozzi Veiga Tab Architects Koplamp Architecten- Tipo Cultura / Ocio Centro de artes Rehabilitación
- Fecha 2020 - 2025
- Ciudad Cortrique
- País Bélgica
- Fotografía Simone Marcolin
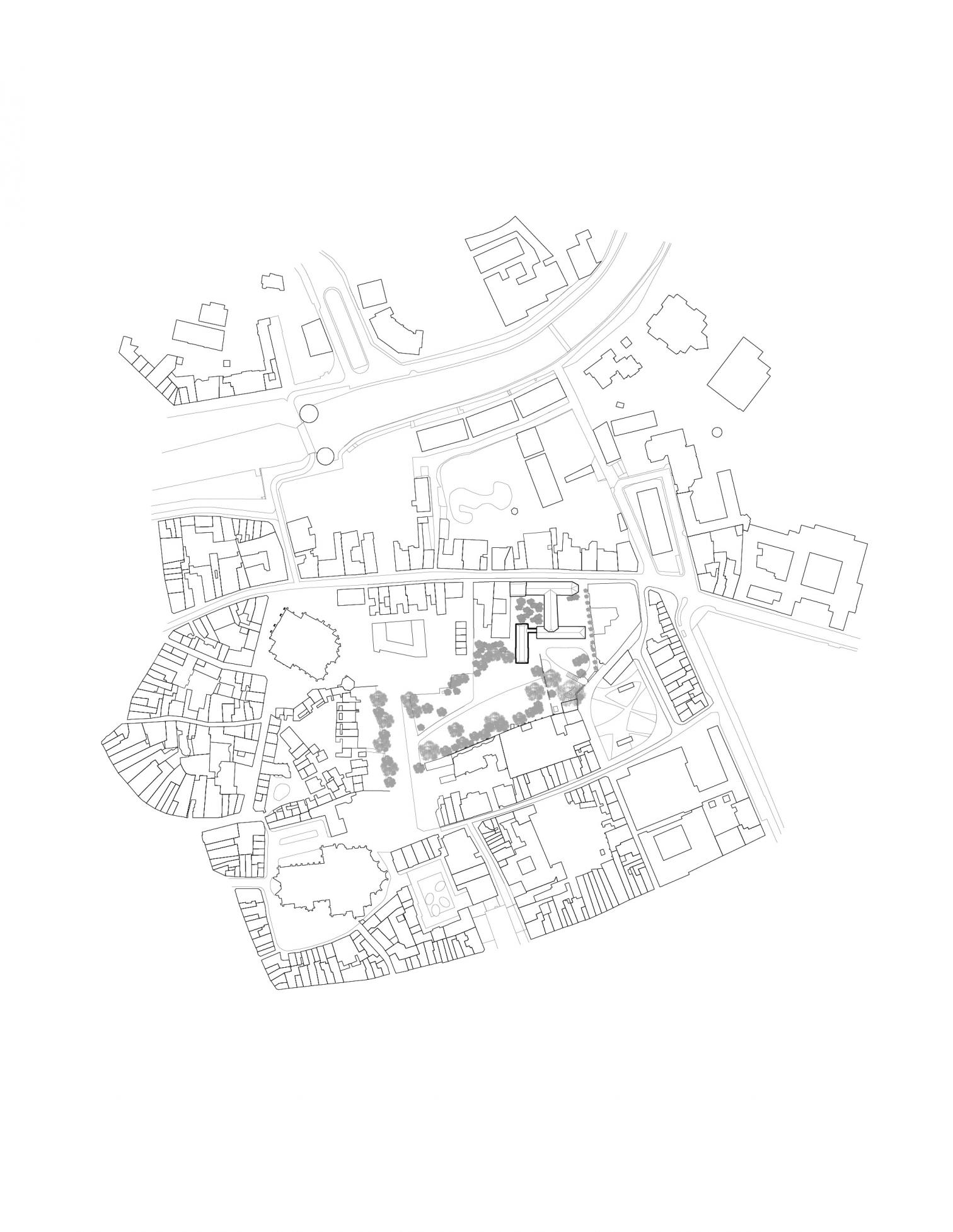
El proyecto amplía y transforma el complejo histórico de la abadía de Groeninge en un espacio artístico para exposiciones temporales y eventos públicos en la ciudad belga de Cortrique, en la provincia de Flandes Occidental.
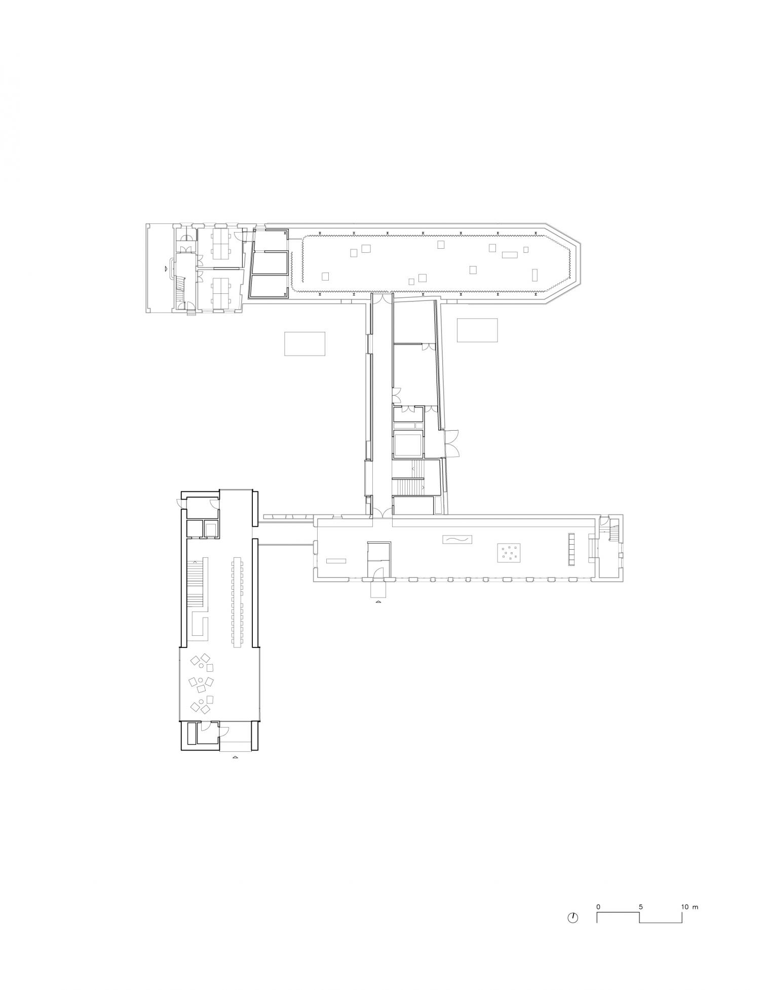
La intervención consolida la capilla y los dormitorios conventuales, incorpora un espacio expositivo subterráneo y añade un nuevo pabellón revestido en ladrillos de tonalidades oscuras, realizados a medida, que incorporan materiales reciclados. La presencia distintiva de esta pirámide truncada establece un diálogo con las construcciones históricas. Su geometría remite a la verticalidad de las cubiertas inclinadas tradicionales, mientras que su disposición ortogonal se alinea con la lógica compositiva del conjunto original.
Conectado al complejo a través del edificio de los dormitorios, el nuevo pabellón alberga un bar y un restaurante. Sus fachadas inclinadas no solo aportan una presencia escultórica al conjunto, sino que generan un ambiente acogedor en el interior.
Desde el punto de vista del diseño urbano, el proyecto elimina elementos que no formaban parte del trazado original de la abadía, y reconfigura el espacio mediante la inserción del nuevo pabellón. Las intervenciones en la capilla y en el edificio de los dormitorios fueron mínimas y respetuosas. Se restauraron las ventanas, el techo y el pavimento original de terracota roja. Asimismo, las fachadas se renovaron siguiendo fielmente el dibujo original.
La ampliación subterránea incorpora salas de exposición neutras, concebidas como un lienzo versátil que se adapta a diversas necesidades curatoriales. La secuencia de espacios, aunque diversa en su carácter, mantiene una coherencia funcional y formal que refuerza la experiencia del visitante.






















