Galería de los Reyes en el Museo Egipcio de Turín
OMA - Office for Metropolitan Architecture Andrea Tabocchini- Tipo Cultura / Ocio Museo
- Fecha 2024
- Ciudad Turín
- País Italia
- Fotografía Marco Cappelletti
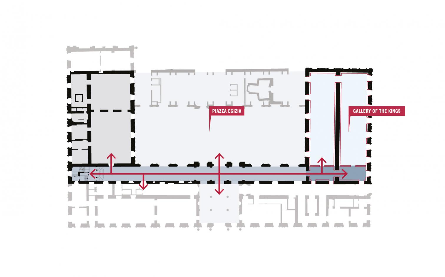
Se ha inaugurado la nueva Galería de los Reyes del Museo Egipcio de Turín. La remodelación se enmarca en la celebración en 2024 del bicentenario de la institución. En 2023, la propuesta de OMA realizada con la colaboración de Andrea Tabocchini resultó ganadora del concurso convocado para renovar el museo. Este rediseño incluye un patio cubierto, denominado la Piazza Egizia, y una serie de salas urbanas públicas interconectadas, cuya finalización está prevista para 2025.
En 2006, el escenógrafo Dante Ferretti convirtió la galería en una caja negra. Por el contrario, la reciente intervención recupera la arquitectura del edificio del siglo XVII para mostrar las bóvedas y las ventanas que caracterizan el espacio. A su vez, se proporciona el contexto primero de las estatuas egipcias expuestas, procedentes del templo de Karnak, en la antigua ciudad de Tebas, actual Lúxor. La disposición de las esculturas monumentales evoca su colocación original en los espacios exteriores e interiores del templo, incluidas las avenidas procesionales y los patios iluminados por el sol.
La experiencia contemporánea de la galería está definida por una transición de la oscuridad a la luz. Los visitantes acceden a la galería a través de una entrada oscura, donde proyecciones digitales en las paredes representan la historia de Karnak. Dos aberturas luminosas guían a los visitantes hacia las dos salas principales, que presentan superficies de aluminio sutilmente reflectantes.










