Escuela politécnica en Boadilla del Monte, Madrid
Iñaqui Carnicero Alejandro Virseda Miguel Ángel Cámara- Tipo Universidad Educación
- Material Zinc
- Fecha 2002
- Ciudad Boadilla del Monte (Madrid) Madrid
- País España
- Fotografía Duccio Malagamba
El campus de Montepríncipe es el tercero de los tres que la universidad privada San Pablo CEU ha establecido en Madrid. Enclavado en el mu-nicipio de Boadilla del Monte, al oeste de la capital, se ha especializado en la enseñanza de ciencias. La escuela politécnica surgió de un concurso internacional de ideas organizado en el año 2000, con un programa complejo —alberga titulaciones como electrónica, informática y arquitectura— que se completará en dos fases. La primera de ellas, recién concluida y con una superficie de 22.600 metros cuadrados, sitúa en una plaza semiexcavada un con-tenedor con dos niveles que materializan dos tipos de actividades, las de encuentro y las formativas, equiparadas en forma y dimensión.



Sobre la superficie de terrazo negro del gran vestíbulo, las piezas casi exentas que forman parte de la vida no lectiva del edificio —y a los que se ha prestado una especial consideración— prolongan la algarabía exterior del campus. El salón de actos emerge envuelto en lajas de mármol blanco, y ceñido en todo su perímetro superior por una banda de vidrio translúcido. Con capacidad para 525 espectadores, la sala se reviste interiormente con paneles acabados en haya teñida y ranurada, y recoge la luz del vestíbulo con una celosía blanca del mismo material situada sobre el escenario. La cafetería, la capilla y la administración completan esta planta, en cuya franja central aparece la huella —una lámina de grava de mármol de Carrara— de uno de los patios superiores, conectando visualmente los dos mundos contenidos en el edificio.

Sobre una plataforma de terrazo negro, las piezas no lectivas, entre las que destaca el salón de actos, se disponen en una suerte de campus interior; el patio de grava blanca es una huella luminosa de las plantas superiores de aulas.

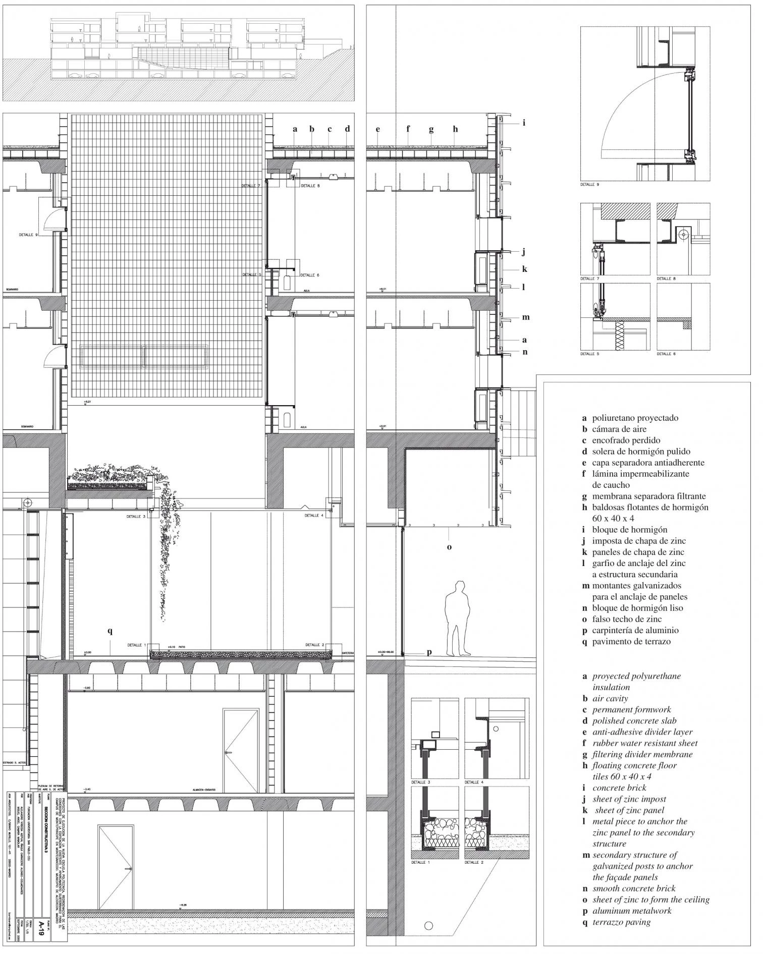
Las plantas primera y segunda se configuran en función de las demandas docentes y de los grupos de alumnos, con aulas dispuestas longitudinal y transversalmente. Tres patios centrales (uno de los cuales desciende hasta la planta baja) atraviesan estos dos niveles iluminando los cuartos auxiliares y las aulas mayores, entre las que destaca la emblemática sala de dibujo, diseñada al estilo de los talleres clásicos de pintura y cuyo perfil sobresale ligeramente. En sentido longitudinal, una calle interior con cuatro huecos por los que discurren las escaleras atraviesa el prisma. Este corredor abandona el edificio a través de una ligera pasarela de madera que taladra, a modo de puente levadizo, la fachada lateral, componiendo un acceso directo a la planta de aulas. El volumen superior, revestido de paneles de zinc —con ventanas corridas hacia el campus y pequeños huecos hacia el paisaje—, se ensancha, regalando al nivel inferior, en forma de generoso porche, otro lugar para el encuentro.


Cliente Client
Fundación San Pablo CEU
Arquitectos Architects
Alejandro Virseda, Iñaqui Carnicero, Miguel Ángel Cámara
Colaboradores Collaborators
I. Vila, L.F. Cámara, M. Iglesias, A. Carrera
Contratista Contractor
ACS; Jabema (fachada de zinc facade)
Fotos Photos
Duccio Malagamba