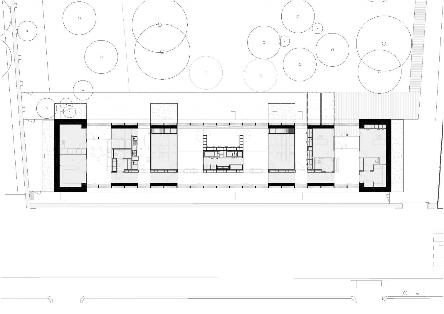
Escuela infantil en el Palais de l'Alma de París
Régis Roudil- Tipo Guardería Educación Jardín de infancia
- Material Madera Tierra compactada
- Fecha 2022
- Ciudad París
- País Francia
- Fotografía 11h45
Este encargo de la Présidence de la République se sitúa en el corazón del palacio parisino de l'Alma, integrado en el conjunto monumental. La escuela con capacidad para 24 niños, construida con madera y tierra compactada, ocupa el jardín de la parte trasera del palacio del siglo XIX —antiguas caballerizas de la casa imperial de Napoleón III—, que actualmente acoge oficinas presidenciales. La guardería alargada y una altura está equipada con muebles de madera hechos a medida, que permiten la fácil reconfiguración de los espacios.










