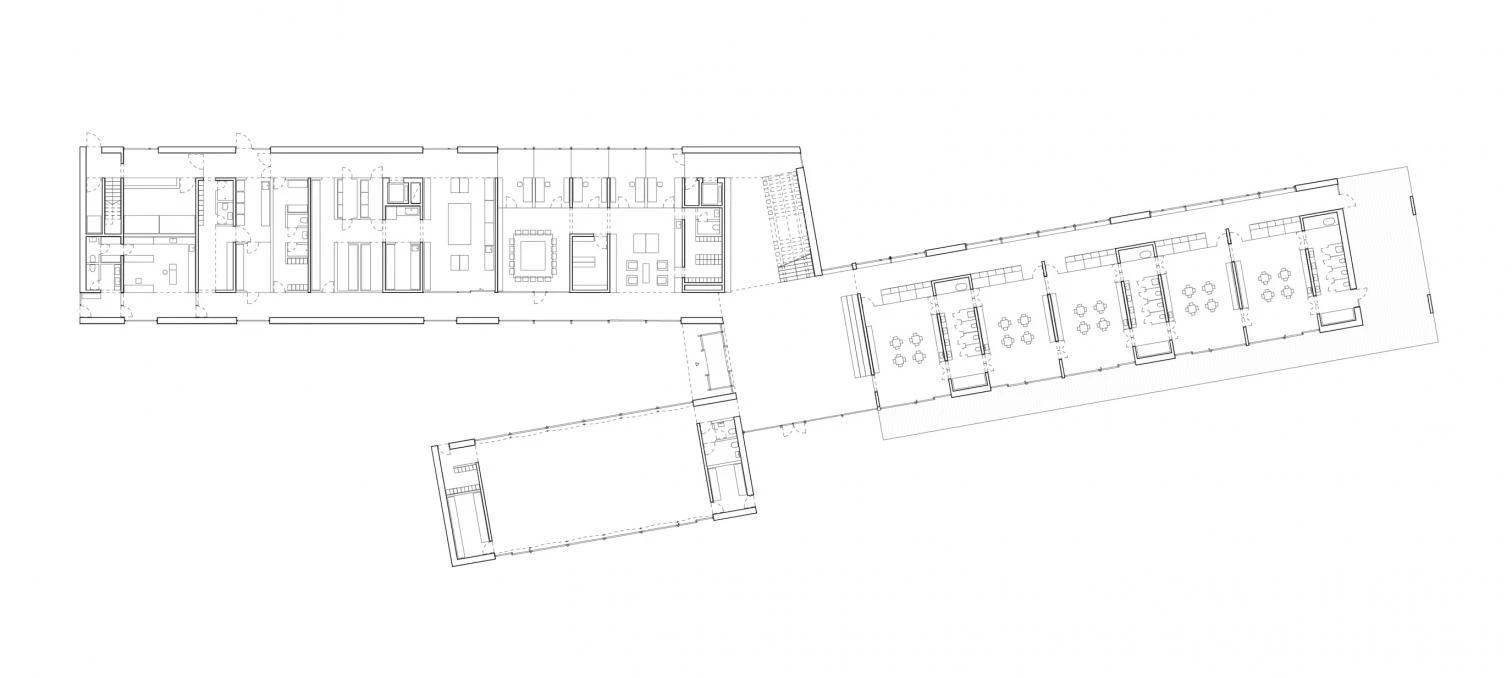
A las afueras de Bohinjska Bistrica, el mayor asentamiento del municipio esloveno de Bohinj, se encuentra este edificio impulsado por la comunidad local que fomenta la educación en conexión con la naturaleza. Fruto de la colaboración entre la firma de Ljubljana ARREA y el estudio madrileño KAL A, la construcción fomenta la interacción entre los niños, mientras exploran y experimentan en el entorno rural. El proyecto está organizado alrededor de una sucesión de núcleos técnicos interconectados, mientras se concibe todo el edificio como un patio de recreo continuo, que integra los espacios interiores y exteriores.
La horizontalidad se enfatiza mediante la implantación de tres grandes cubiertas a dos aguas, resultado de la fragmentación del programa en tres volúmenes distintos, que reducen gradualmente su escala y, a su vez, generan una plaza abierta como entrada principal y tres jardines conectados entre sí. La construcción está inspirada en la tradición local de construcción en madera, con el kozolec (secadero) y la granja como elementos más representativos. En todos los edificios se sigue la misma estrategia: tres vigas longitudinales principales de madera laminada, que colaboran con un entramado estructural secundario de madera, para soportar las cubiertas de chapa plegada metálica. Todo ello se levanta sobre núcleos de hormigón armado los cuales nacen de una losa común. El revestimiento de madera de alerce sin tratar proporciona de forma natural una gran resistencia al deterioro. El elemento organizativo central del espacio interior se basa en el tradicional gank esloveno (balconada de madera), que vertebra el proyecto funcional y estructuralmente.
Esta escuela de primaria en Bohinj es una de las cuarenta obras que optan al Premio Mies van der Rohe 2024.
























