Escuela de Arte y Diseño, Amposta
David Sebastián Gerard Puig- Tipo Educación Cultura / Ocio
- Fecha 2012 - 2013
- Fotografía Adrià Goula
Dos emplazamientos contiguos, aunque separados por un vial fueron el punto de arranque del concurso impulsado por el Ayuntamiento de Amposta. Este comprendía la construcción de dos edificios de programas y escalas muy diferentes en una zona de la ciudad periférica y estratégica a un tiempo. El primero constituiría la nueva sede de la Escuela de Arte y Diseño de la ciudad, mientras que el segundo acogería un Palacio de Ferias que sustituiría al existente en el propio solar, ya muy deteriorado. Un solo concurso para dos proyectos era un planteamiento atípico. Sin embargo, ha dado lugar a una intervención unitaria que aprovecha la proximidad entre los dos solares para maximizar la utilización de ciertos espacios, como el auditorio de la escuela, que será utilizado por las dos dotaciones.

Ubicada a las afueras de Amposta, la Escuela de Arte y Diseño compartirá con el futuro Palacio de Ferias su génesis, la lógica organizativa, el tipo de estructura ligera y el uso de ciertos espacios, como el auditorio.


La propuesta no entiende el proyecto como dos edificios aislados, sino que propone el verbo ‘contaminar’ para explicar la mezcla del uno con el otro y encontrar así un lenguaje común, tanto en planta como en sección. De este modo, las dimensiones del auditorio fijan las luces de la feria, mientras los espacios más pequeños de ésta toman las dimensiones de las aulas de la escuela. La primera fase ha comprendido tan sólo la construcción de la escuela.


La estructura metálica y la chapa siguen la lógica de un edificio ligero, pero su combinación con el uso abundante del ladrillo perforado, empleando varios tipos y colocaciones, confiere al edificio una gran calidez.
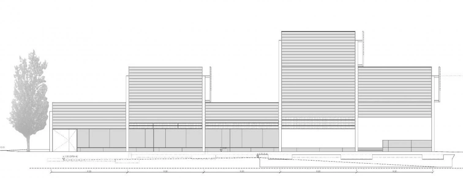
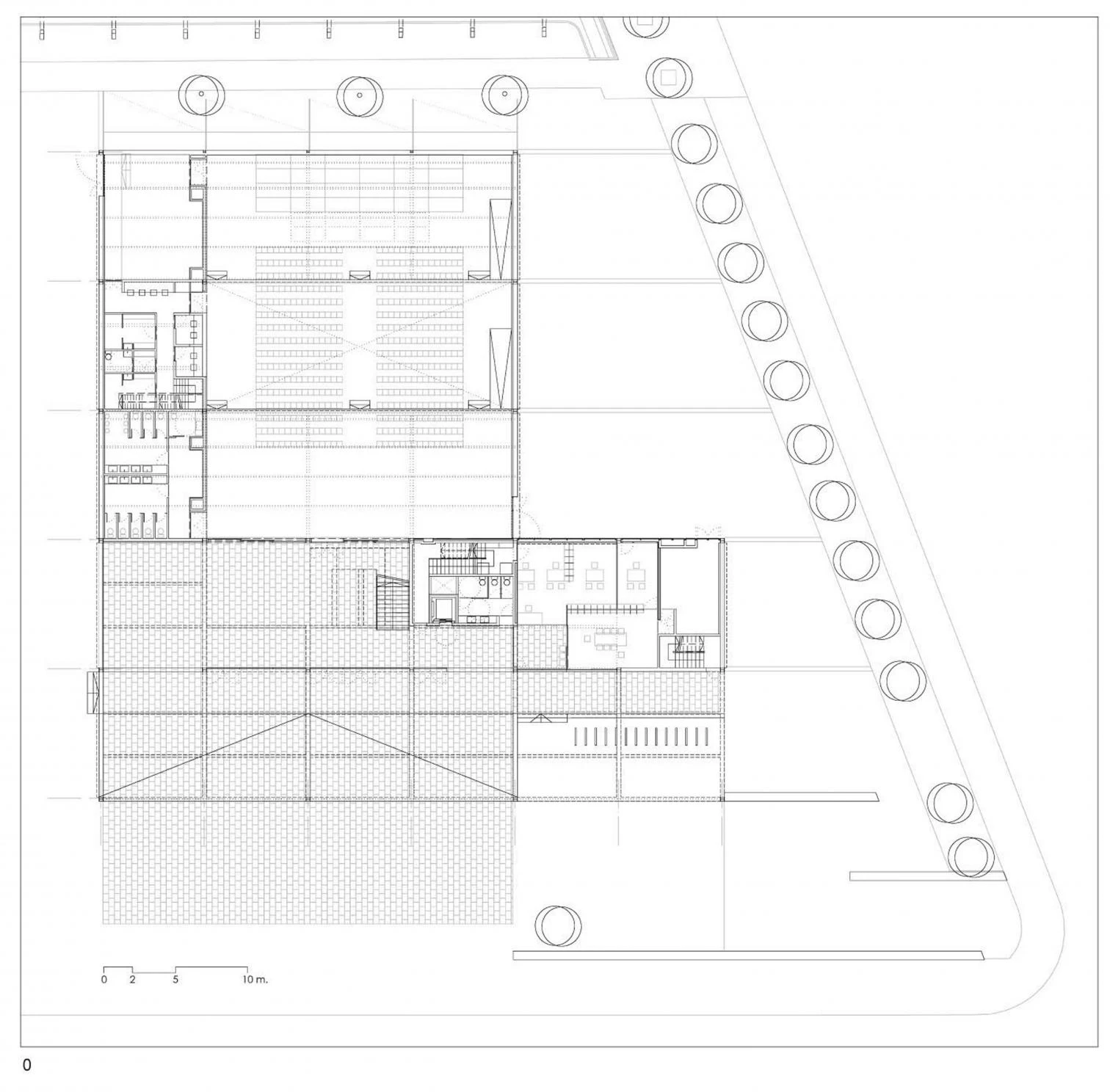
Los edificios se organizan en franjas de 9 metros de anchura y de alturas variables. Estas franjas se agrupan y deslizan en función del programa, del entorno y de los límites edificables. Así, la calle de Sebastià Joan Arbó que los separa actúa como eje generador de la geometría del proyecto, de modo que la alineación estricta con este vial provoca que los dos edificios se encaren, y que se perciba la continuidad del uno en el otro. Este punto de encuentro es también el lugar donde se ubican los accesos principales: en el caso de la escuela este se produce a través de un gran porche que comunica secuencialmente con la zona destinada a exposiciones y la sala polivalente. En planta baja se distribuyen también los despachos y la sala de profesorado. El resto del programa se organiza en altura, en plantas alargadas con sus dos caras principales orientadas norte-sur.


Para resolver los requerimientos aparentemente contradictorios de grandes luces para el palacio ferial y un grano más pequeño para la escuela se ha dispuesto una retícula de pilares y jácenas metálicas de 9x7,2 metros. Cuando es necesario aumentar la luz, se quita un pilar y se sustituye por dos diagonales, y así sucesivamente, hasta un máximo de tres pilares en el caso de las cerchas de unos 30 metros de luz utilizadas en el palacio.



Cliente Client
Ayuntamiento de Amposta
Arquitectos Architects
David Sebastian, Gerard Puig
Colaboradores Collaborators
Glenn Deulofeu, Rodolfo García
Consultores Consultants
Agustí Obiol (estructura structure); Servelec Psf (instalaciones mechanical engineering); Serveis d’Arquitectura Betarq (mediciones y presupuesto construction measurements and budgets)
Contratista Contractor
Construccions NSolé
Fotos Photos
Adrià Goula