Escuela de Arte en Valladolid
Estudio Primitivo González | e.G.a- Tipo Educación Escuela especializada
- Fecha 2022
- Ciudad Valladolid
- País España
- Fotografía Luis Díaz Díaz
El edificio está situado junto al Convento de las Carmelitas Descalzas. Según los planos históricos, la parcela pertenecía a los huertos del convento, y esta condición marca el carácter de la propuesta desde el inicio. Hacia la ciudad se proyecta la imagen de una arquitectura de tapias; hacia el interior, una arquitectura de patios. El proyecto debía ser respetuoso con su contexto histórico. Sin embargo, había de albergar un espacio destinado a la creatividad y los sueños. Lo esencial es la materialización de esta dualidad.
El exterior es de ladrillo negro: una arquitectura ‘de tapias’, de textura, materialidad y color, capaz de transmitir un cierto misterio que evoca el mundo interior de creación. Por oposición, el interior está diseñado como un espacio tecnológico, blanco y luminoso, con alusiones formales a la arquitectura industrial, de producción y fabricación.
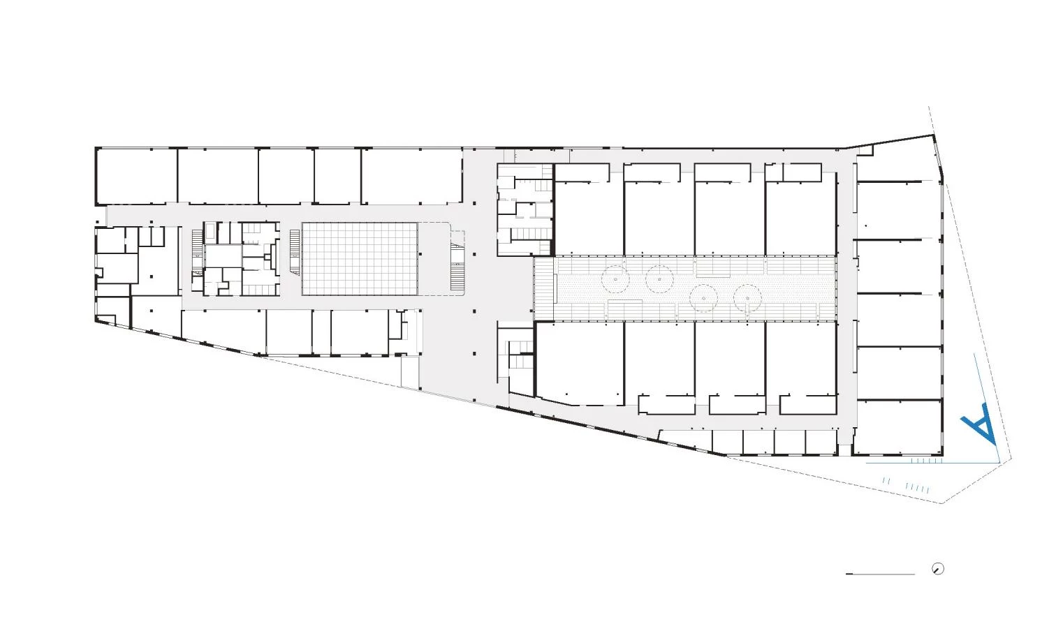
Como sistema de proyecto se mantiene la arquitectura de patios aprendida del convento colindante. Uno de los patios articula la zona de aulas en dos alturas, mientras que el otro, algo más grande, organiza los talleres bajo un plano de hormigón plegado. Este plano mantiene un perfil recto en su presencia respetuosa en fachada, mientras que hacia el interior presenta un perfil quebrado, generando unos grandes ventanales que vuelcan al patio, un espacio central concebido como ágora de creación joven, dinámica y versátil donde los estudiantes pueden compartir sus experiencias. Los patios se convierten así en vitrinas donde exponer, actuar o relacionarse, un esquema tipológico tradicional actualizado.
El vestíbulo es el punto de tangencia entre los distintos usuarios del edificio; el lugar en el que confluyen las enseñanzas. Regula las entradas y salidas, pero también se convierte en un lugar de encuentro. Es en este espacio donde se ubican los programas comunes, como la biblioteca o la cafetería. Este espacio cuenta con una doble altura vinculado al patio de aulas, dónde se podrán realizar encuentros y celebrar eventos.
Aprovechando la ubicación del edificio, integrado en la trama urbana, el proyecto ofrece a Valladolid una pequeña plaza de bienvenida: se crea un espacio de encuentro para los jóvenes, pero también para la ciudad. La pequeña plaza, con el cartel de ‘arte’ permitirá a los alumnos reunirse a la entrada o salida de clase y sentarse a charlar estando en la calle, apropiándose del espacio público, y activando la arquitectura. De esta manera, el edificio configura un fondo, y los propios alumnos la actividad que será reclamo para la ciudad.



















Cliente Client
Consejería de Educación, Junta de Castilla y León
Arquitecto Architect
estudio Primitivo González | e.G.a
Primitivo González, Noa González, Ara González (autores del proyecto project authors)
Colaboradores Collaborators
Jessica Nieves, Laura Borreguero (concurso competition), Judith Sigüenza (proyecto project)
Superficie construida Floor area
6.173m²
Fotos Photos
Luis Díaz Díaz