Escuela Alfa Omega, Salembaran
RAW Architecture- Tipo Educación Escuela
- Material Bambú Materiales no convencionales
- Fecha 2017
- Ciudad Tangerang
- País Indonesia
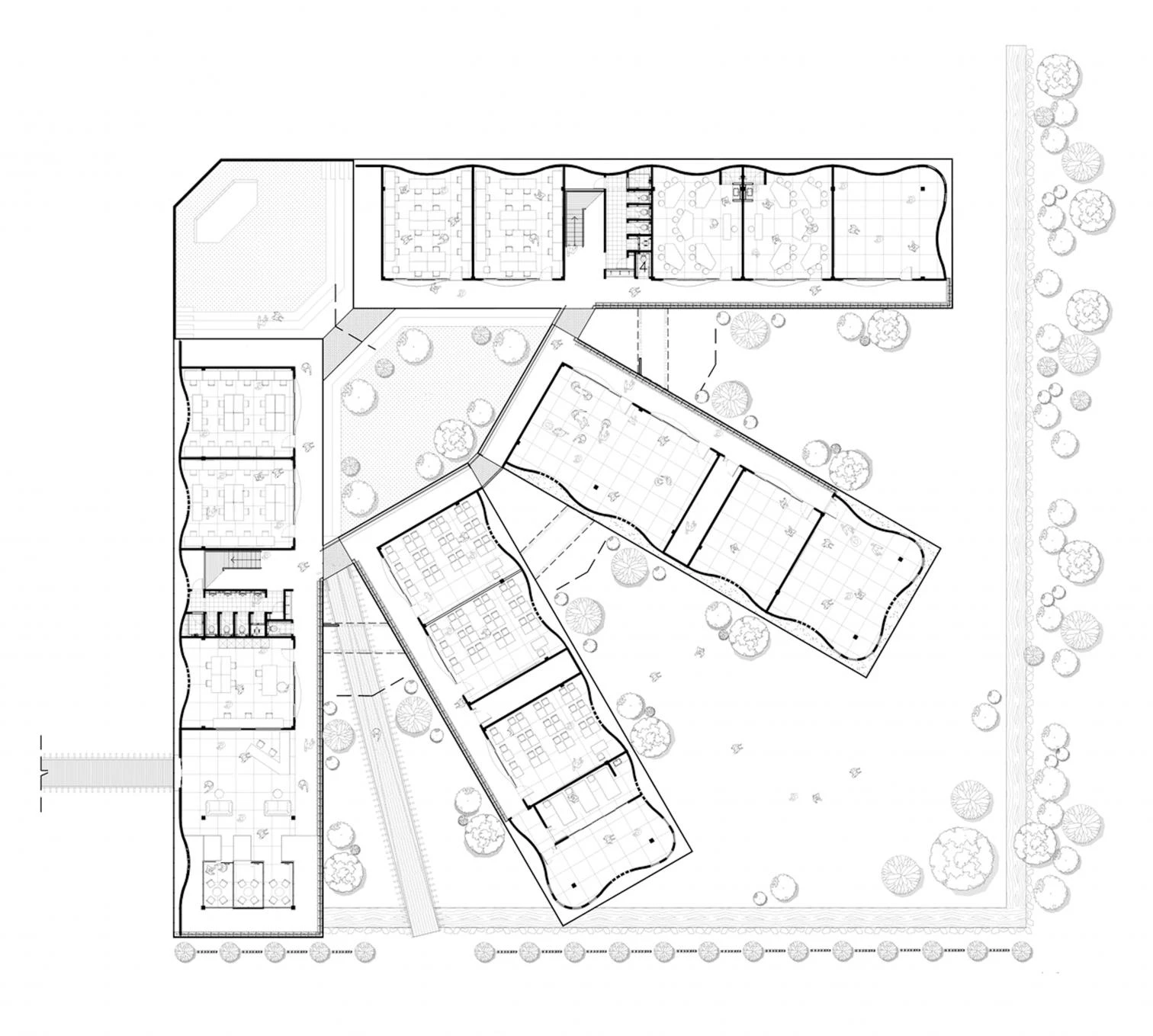
La escuela se sitúa en la ciudad indonesia de Tangerang y está formada por cuatro pabellones dispuestos radialmente, que se conectan a una plaza principal de acceso. El hecho de que el conjunto adopte la forma de un palafito, levantándose algo más de dos metros sobre un campo de arroz, se debe a dos razones: resolver la cimentación sin crear huella edificada y, al mismo tiempo, abrir las distintos espacios al paisaje circundante.



Los pabellones siguen los motivos característicos de la arquitectura tradicional: en su tipo, mediante la cubierta inclinada a dos aguas; y, en los materiales, con el uso del bambú. Sin embargo, las referencias a la tradición no han sido obstáculo para que, allí donde fuera necesario, se haya recurrido a la tecnología contemporánea.

La cimentación y la estructura principal están construidaas con perfiles de acero; sobre ellos se apoya la estructura secundatia de la cubierta, formada por palos de bambú entrelazados y una capa impermeable de ramaje.


Así, la estructura es mixta: mientras que los pilotes y resto de apoyos se resuelven con perfiles de acero laminado, los revestimientos están hechos con un sinnúmero de palos y ramas de bambú entrelazados, cuya flexibilidad permite generar sugerentes superficies alabeadas.



Obra Work
Escuela Alfa Omega en Salembaran, Tangerang (Indonesia); Alfa Omega School in Salembaran, Tangerang (Indonesia).
Arquitectos Architects
RAW Architecture / Realrich Sjarief (arquitecto responsable architect in charge).
Colaboradores Collaborators
A. Kharisma, M. Nurdayat, L. Ramadhina, S. Effendi, R. Harendana, S. Triwardhana, T. Kusumo, F. Khairunnida, R. Septiawan, B. Priyono.
Fotos Photos
RAW Architecture.