Centro universitario Town House en Londres
Grafton Architects- Tipo Educación Universidad
- Material Hormigón
- Fecha 2013 - 2019
- Ciudad Londres
- País Reino Unido
- Fotografía Ed Reeve Alice Clancy Dennis Gilbert Nick Kane
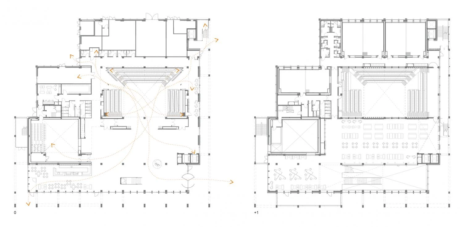
Un almacén de ideas, un laberinto de volúmenes entrelazados, un nexo entre la comunidad y la universidad, así podría describirse este centro nacido de la visión progresista de la Universidad de Kingston. Concebido como un lugar donde pudieran coexistir el sonido y el silencio, el diseño debía además fomentar los intercambios inusuales. De hecho, el encargo requería más de un 50% de espacios abiertos. De perfil reconocible por su volumetría asimétrica definida por pórticos de hormigón prefabricado, el edificio funciona como puerta de entrada al campus y sugiere el carácter abierto y participativo que debe tener hoy una universidad. Además de dotar al conjunto de una imagen representativa, la columnata es un elemento polivalente: funciona como escalera de incendios, balcón, protector solar, jardín o zona exterior de estudio. Hacia el interior, una vez atravesado el umbral de acceso, una gran escalera da la bienvenida a los estudiantes. En el centro se dispone el espacio colectivo principal del conjunto; un auditorio abierto, un foro, volcado hacia el exterior y conectado visualmente con los niveles superiores. Respecto al consumo de energía, se priorizó la implantación de estrategias de climatización pasiva empleando la impulsión mecánica tan sólo allí donde fuera imprescindible.
Premio Stirling 2021. The Guardian. ‘It sounded crazy’: palatial six-storey hymn to social interaction is Britain’s best new building








Cliente Client
Kingston University
Arquitectos Architects
Grafton Architects
Colaboradores Collaborators
AKT II (estructura structure); Dermot Foley (paisajismo landscape); Chapman BDSP (instalaciones mechanical and electrical); Turner & Townsend (project manager); Michael Slattery & Associates (acceso access); Applied Acoustic Design (acústica acoustics); Sound Space Vision (teatro y performance theater and performance); Steer Davies Gleave (señalética signage); Nathaniel Lichfield & Partners (planificación planning)
Superficie Floor area
9.100 m²
Fotos Photos
Alice Clancy; Ed Reeve; Dennis Gilbert; Nick Kane