Edificio del New York Times, Nueva York
Renzo Piano Building Workshop- Tipo Comercial / Oficina
- Fecha 2002 - 2007
- Ciudad Nueva York
- País Estados Unidos
- Fotografía Wade Zimmerman Michel Denancé Nic Lehoux
La nueva sede del periódico The New York Times fue fruto de un concurso privado por invitación convocado en 2000, en el que se propuso abrir a Manhattan un rincón hasta entonces olvidado, justo enfrente de la Autoridad Portuaria, mediante un edificio de 52 plantas cuya permeabilidad y transparencia expresarían simbólicamente los estechos vínculos entre el periódico y la ciudad.
La forma del edificio es sencilla y se inspira en la cuadrícula urbana de Manhattan. Ocupando casi la mitad de la manzana entre las calles West 40th y 41st, la esbelta torre cruciforme extiende su huella hasta la Octava Avenida. Las cuatro primeras plantas colonizan la trasera de la parcela, llenándola para conformar un podio. Dispuesto en torno a un patio ajardinado, este podio alberga la redacción del periódico, apodada ‘la panadería’ porque los periodistas trabajan allí toda la noche preparando la edición de la mañana siguiente.
Abundando en la idea de la transparencia, el vestíbulo de la planta baja no es un recinto cerrado y privado, como suele ser habitual en los rascacielos de Nueva York, sino un espacio abierto que puede ser utilizado como atajo para atravesar la manzana. Cruzando el vestíbulo hay un patio al aire libre, espacio sereno de abedules y musgo que funciona como telón de fondo de un auditorio de 378 butacas. La permeabilidad permite que, al sentarse en el auditorio, puedan verse a través del edificio los taxis que, en el exterior, discurren por la Octava Avenida. En el vestíbulo se ha colocado la instalación Moveable Type, de Ben Rubin y Mark Hansen, cuyas 560 pequeñas pantallas presentan la información cambiante manejada por el periódico.
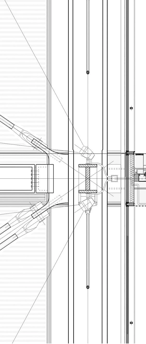
La torre tiene una singular fachada con doble hoja. La hoja exterior está formada por 175.000 varillas cerámicas horizontales y de color blanco, sujetas por un delgado marco de acero y que protegen la hoja interior de vidrio, que va de suelo a techo. El color de las piezas cerámicas se modifica en función de los cambios meteorológicos, y todo el conjunto actúa como una eficaz protección solar capaz de reducir en un 50 % la radiación incidente. Esto permite que la hoja interior esté construida con un vidrio de gran transparencia que inunda los interiores de luz natural, al tiempo que abre los espacios de trabajo a las vistas sobre la ciudad.
La piel cerámica se extiende 32 metros más allá de la altura de la cornisa interior: en el remate, las varillas cerámicas se van separando progresivamente de tal modo que la pantalla parece ir disolviéndose poco a poco conforme crece en altura. La torre se corona con un mástil de 91 metros de longitud.





















Obra Work
Edificio del New York Times
The New York Times Building
Cliente Client
The New York Times Company, Forest City Ratner Companies, ING Real Estate
Arquitectos Architects
Renzo Piano Building Workshop en colaboración con in collaboration with Fox & Fowle Architects
Colaboradores Collaborators
Concurso Competition (2000): B.Plattner (socio responsable partner in charge), E.Volz with G.Bianchi, J.Moolhuijzen, S.Ishida, P.Vincent (socios partners), A.Eris, J.Knaak, T.Mikdashi, M.Pimmel, M.Prini, A.Symietz; Ove Arup & Partners (estructura structure)
Desarrollo Development (2000-2007): B.Plattner (socio responsable partner in charge), E.Volz (asociado associate) with J.Carter, S.Drouin, B.Lenz, B.Nichol, R.Salceda, M.Seibold, J.Wagner and C.Orsega, J.Stanteford, R.Stubbs, G.Tran, J.Zambrano; O.Aubert, C.Colson, Y.Kyrkos (maquetas models)
Consultores Consultants
Thornton Tomasetti (estructuras structure); Flack & Kurtz (instalaciones services); Jenkins & Huntington (ascensores vertical transportation); Heitman & Associates (fachadas facade); Ludwig & Weiler (escaparate storefront); Office for Visual Interaction (iluminación lighting); Gensler Associates (interiorismo interiors); H.M.White (paisajismo landscape); AMEC (dirección de obra construction manager)
Fotos Photos
Wade Zimmerman; Michel Denancé; Nic Lehoux