Edificio Caracol, Sant Boi de Llobregat
estudioHerreros MIM-A Arquitectes- Tipo Colectiva Vivienda
- Fecha 2009 - 2019
- Ciudad Sant Boi de Llobregat (Barcelona)
- País España
- Fotografía José Hevia
El programa, que mezcla viviendas protegidas y de mercado, demanda prácticamente la colmatación del volumen disponible. Esta limitación, y las exigencias de eficacia y sencillez, suponen un reto para un proyecto con algún valor añadido.
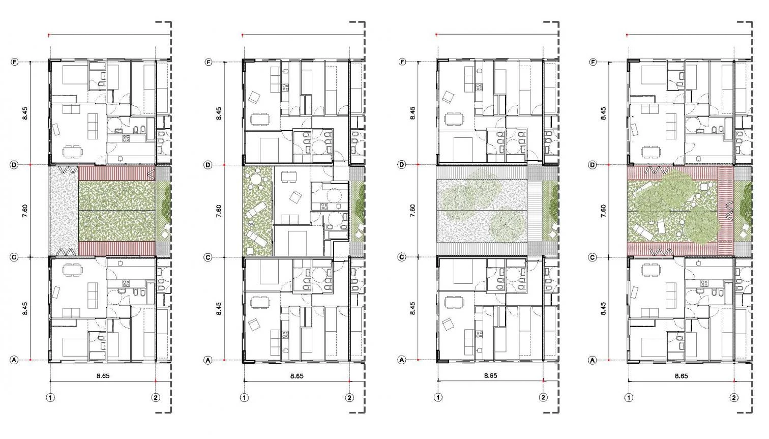
El punto de partida es una planta tipo de 12 viviendas. Es necesario sacrificar la mínima superficie en comunicaciones, lo que lleva a la decisión de implantar un solo núcleo central con dos escaleras entrelazadas tipo ‘tijera’, dos ascensores y dos núcleos de instalaciones. Hay por tanto un único portal pasante y una única centralización de acometidas en planta baja que repercutirán en la limpieza del espacio comercial y del aparcamiento bajo rasante, favoreciendo a su vez el desarrollo de un estudiado circuito de itinerarios accesibles que comunican las viviendas y dependencias comunitarias con el exterior.
Respecto de las viviendas, todos los estares y dormitorios son exteriores, mientras que accesos, cocinas y baños dan a los corredores que comparten cada tres viviendas. Todas las unidades están diseñadas como practicables, y el 3% de ellas son completamente adaptadas. Desde este esquema, que solidifica el volumen disponible, se realizan operaciones de sustracción que permiten entallar una nueva morfología, generando amplias terrazas colectivas e individuales y facilitando ventilaciones cruzadas y vistas diagonales.
Las fachadas exteriores son repetitivas y cerradas mediante lámina de panel industrial ventilado, buscando una imagen rotunda y monumental del volumen, que está rodeado de un gran parque. Las fachadas de patios y corredores tienen un carácter cuasi pintoresco con celosías, alicatados y pavimentos de baldosa cerámica de amplia tradición en Cataluña.
En cuanto al comportamiento energético, se ensaya un modelo de sostenibilidad pasiva sustentado en el diseño arquitectónico, tanto espacial como material, que pretende el ahorro de energía consumida pero también demandada, así como la reducción de la huella de carbono de los materiales desde su origen hasta la puesta en obra y vida futura. Recursos como la ventilación cruzada aprovechando las diferencias de temperatura entre las fachadas exteriores y el patio, y la disponibilidad de luz natural en ambas fachadas garantizan el confort y el ahorro energético. Estas medidas se apoyan en complementos tecnológicos de última generación, como redes de instalaciones bien calibradas en todo el edificio, un sistema de aerotermia y radiadores de baja temperatura, y paneles fotovoltaicos que cubren la iluminación de todos los espacios comunes. Por todo ello, el edificio ha obtenido el Nivel A de Certificación Energética.[+][+][+][+]

















Cliente Client
AMB. IMPSOL
Arquitectos Architects
estudioHerreros: Juan Herreros & Jens Richter
MIM-A: Mariona Benedito & Martí Sanz
Colaboradores Collaborators
Abraham Piñate (responsable del proyecto architect of the project); Martha Sosa Días, Verónica Meléndez, Paola Simone, Carmen Antón, Filippo Sapienza, Xavier Isart, Clara Vidal, Ignasi Agustí, Ignasi Navàs (equipo de proyecto project team)
Consultores Consultants
Manuel Arguijo (estructura structure); PGI (instalaciones mechanical engineering); Eulalia Arán (aparejadora quantity surveyor)
Superficie Floor area
12.500 m²
Fotos Photos
José Hevia