Edificio de oficinas en Amador de los Ríos, Madrid
Estudio Lamela- Tipo Comercial / Oficina
- Fecha 2023
- Ciudad Madrid
- País España
- Fotografía Juan Sancho
- Marca Erco LafargeHolcim Schindler Geze Iberia Schüco Cortizo Jansen Saint Gobain Glass Danosa Rockwool Porcelanosa Grupo
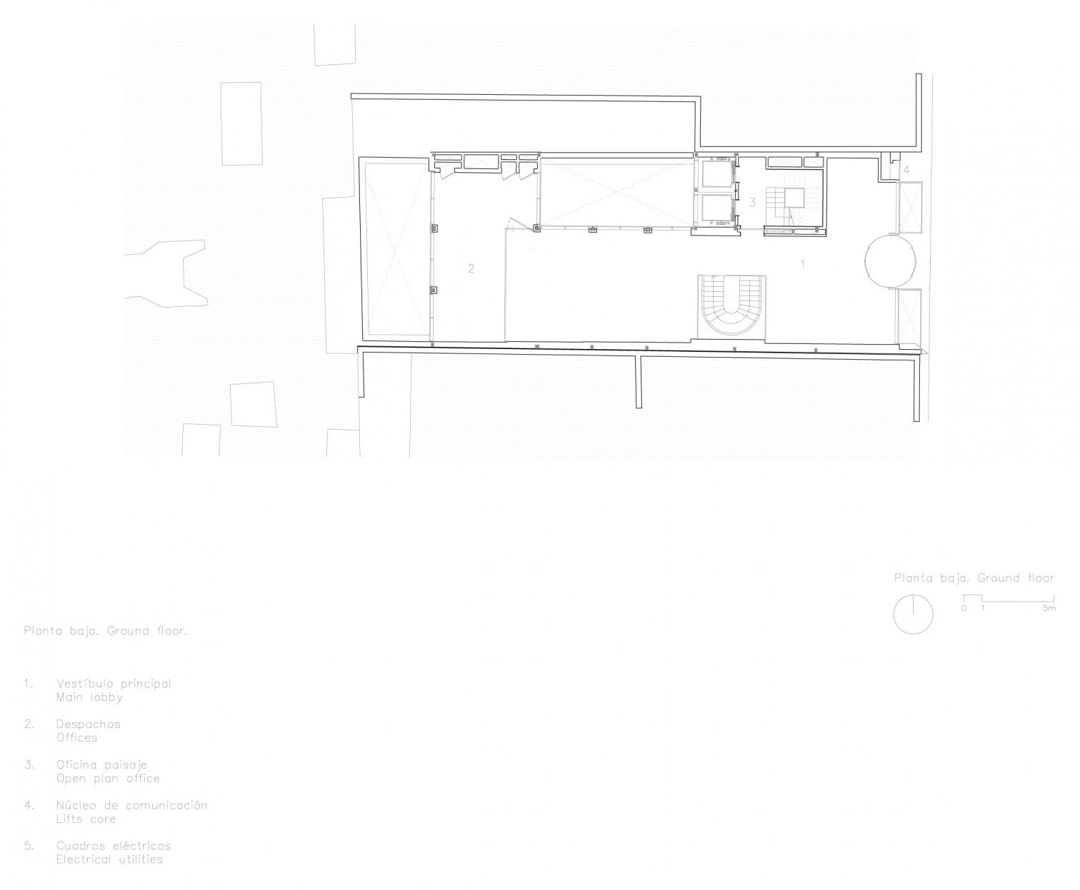
La actuación sobre un edificio existente, en el número 5 de la calle Amador de los Ríos de Madrid, consistente en la renovación de un bloque de oficinas levantado en 1966. Con una superficie de 1.700 metros cuadrados, el edificio de perteneciente a Primework Properties se restructura parcialmente en las plantas baja, sótano y cuarta, con sustitución de fachadas y acondicionamiento general de los espacios para uso terciario (oficinas).
Las intervenciones están destinadas a la actualización de las instalaciones, la mejora energética, el refuerzo estructural y el cumplimiento de la normativa de accesibilidad universal, optimizando la funcionalidad. Estas actuaciones se han realizado partiendo de un estudio exhaustivo del edificio original. La composición de la nueva fachada exterior es respetuosa con las construcciones del entorno, adaptándose a su ritmo, cadencia y tipología en general. En ella se introducen soluciones tradicionales como doble fachada, pérgola y columnata. Se apostó por una fachada donde únicamente se aprecian dos materiales: vidrio y piedra, quedando la carpintería oculta. Las lamas pétreas torsionadas aportan un aspecto cambiante a la fachada según la hora del día. El frente a la calle Amador de los Ríos mide 11 metros, una crujía bastante estrecha que supuso un reto en el proyecto: intentar, a través del diseño de la fachada, conseguir una sensación de amplitud y mayores dimensiones. En la cubierta se plantea una zona de recreo, incluyendo vegetación y un graderío para eventos.




















