Conjunto de viviendas Lohbach I, Innsbruck
Baumschlager Eberle Architekten- Tipo Colectiva Vivienda
- Fecha 1997 - 2000
- Ciudad Innsbruck
- País Austria
- Fotografía Eduard Hueber
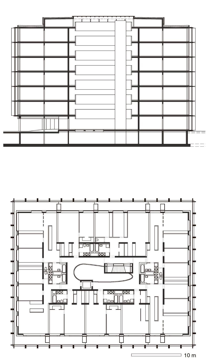
Desde la manzana cerrada al edificio en altura, todo un catálogo de formas urbanas acompaña el solar de la periferia de Innsbruck donde estaba prevista la construcción de un gran número de pisos de protección oficial. Lindando al sur con los edificios de los años sesenta que componen el campus universitario, la urbanización del conjunto tuvo como prioridad fomentar la relación de las viviendas con el entorno natural que rodea la ciudad, condicionando la elección de un tipo edilicio que permitiera la permeabilidad de la actuación a pesar de la gran densidad requerida.
Un total de 298 viviendas se reparten en los seis bloques de entre cinco y siete alturas que constituyen la primera fase de un conjunto de once. Buscando la economía constructiva y el ahorro energético, se eligió una volumetría compacta que presentara menor extensión de fachada por unidad de superficie útil. Siguiendo un principio compositivo en capas concéntricas, las entradas a las viviendas se presentan pareadas a lo largo del corredor que circunda un gran vacío central de trazado elíptico, protegido de la intemperie por el lucernario de la cubierta. Alrededor de este distribuidor, en cada planta se dispone una banda de servicios que concentra el ascensor, las escaleras, así como los trasteros, los baños y las cocinas de cada apartamento, reservando la corona exterior para dormitorios y otras estancias vivideras. La última capa del edificio está formada por el espacio privado al aire libre de los balcones, que se puede ocultar por completo, cerrando las contraventanas verticales de cobre fijadas al perímetro. Con las contraventanas cerradas, los bloques se presentan como voluminosos cubos de cobre, una geometría rotunda que desaparece cuando al plegarse, esta coraza descubre la envolvente térmica del edificio, revestida de madera.
Junto a la compacidad de la forma, otras medidas han conseguido reducir en un setenta por ciento las demandas energéticas domésticas. Además de emplear 25 centímetros de aislante y colectores solares, un sistema de intercambio controlado de aire reduce las pérdidas por ventilación: el aire frío se calienta al pasar por un recuperador térmico, que previamente ha extraído el calor del aire viciado, para adquirir la temperatura definitiva mediante una bomba de calor antes de ser impulsado en dormitorios y salas de estar. El aire viciado se extrae a través de las cocinas y los baños para ser expulsado al exterior tras pasar por el recuperador. Con el mismo instinto autosuficiente, se recoge la lluvia en cubierta para surtir las cisternas de los baños... [+]











Obra Work
Wohnen am Lohbach I
Cliente Client
Neue Heimat Tirol Gemeinnützige Wohnungsbau- und Siedlungsgesellschaft mbH
Arquitectos Architects
Baumschlager Eberle Architekten
Colaboradores Collaborators
Gerhard Zweier (jefe de proyecto project architect), Herwig Bachmann, Reinhard Drexel, Iris Kellner, Karin Kupsky, Michael Ohneberg, Christian Tabernigg (equipo assistance)
Consultores Consultants
Vogt Landschaftsarchitekten (paisajismo landscape architect); D.I. Wallnöfer, D.I. Fritzer, D.I. Saurwein (estructura structural engineer); GMI Gasser & Messner Ingenieure (tecnología building technology)
Superficie construida Built-up area
4,850 m²
Fotos Photos
Eduard Hueber / archphoto © Baumschlager Eberle Architekten