Colonia Lo Barnechea, Santiago
Alejandro Aravena ELEMENTAL- Fecha 2008 - 2014
- Ciudad Santiago de Chile
- País Chile
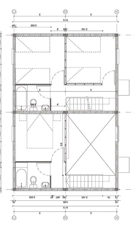
La comuna de Lo Barnechea, al noreste de Santiago, es una de las más caras de la ciudad. Sin embargo, presenta muchos contrastes en su tejido, ya que existen grandes áreas con casas de lujo, zonas densas de vivienda social y otras con campamentos autoconstruidos. Estas viviendas, desarrolladas en dos fases, se crearon para realojar a un gran número de familias de dos grandes asentamientos irregulares, creando un conjunto de 363 casas. Como en casos anteriores, el proyecto da prioridad a que las familias puedan permanecer en su zona de residencia habitual, para mantener los beneficios de la cercanía a sus trabajos y escuelas, y no crear riesgos de exclusión social. La construcción se ordena alrededor de patios colectivos que sirven a un promedio de veinte viviendas, y que constituyen una asociación territorial entre el espacio público y el privado, algo fundamental en este tipo de actuaciones. Para optimizar el uso de suelo sin hacinamiento, se propone un modelo de casa con desarrollo vertical en tres niveles y posibilidades de ampliación hacia el interior. Aunque parten de una situación original muy básica, cada unidad puede llegar a ofrecer un salón comedor, dos dormitorios y un baño en el segundo piso, y un dormitorio principal abuhardillado en el tercero.






















Obra Work
Colonia Lo Barnechea: 150 viviendas y 1 sede social (fase 1); 213 viviendas y 2 sedes sociales (fase 2) Lo Barnechea Neighborhood: 150 dwellings and 1 civic center (Phase 1); 213 dwellings and 2 civic centers (Phase 2)
Cliente Client
Programa Chile Barrio MINVU
Arquitectos Architects
Elemental
Consultores Consultants
JJ Proyectos Integrales (urbanización y especialidades urbanization and specialities); José Garjardo (ingeniería estructural structural engineering)
Contratista Contractor
Cvv Constructura
Superficies Areas
Fase 1 Phase 1:
Terreno ground: 25,195 m²; vivienda inicial initial house: 44 m²; vivienda ampliada extended house: 69 m²; sede social civic center: 77 m²
Fase 2 Phase 2:
Terreno ground: 25,000 m²; vivienda inicial initial house: 44 m²; vivienda ampliada extended house: 70 m²; sede social civic center: 77 m²
Presupuesto Budget
234,300 UF
Fotos Photos
Elemental