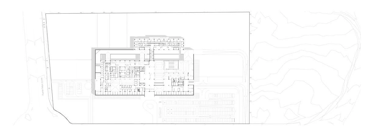
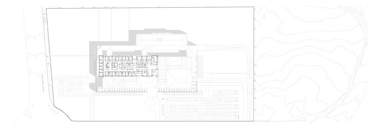
Clínica Universitaria de Navarra en Madrid
IDOM- Tipo Hospital
- Fecha 2018
- Ciudad Madrid
- País España
- Fotografía Aitor Ortiz
El proyecto de Idom, dirigido por Jesús María Susperregui Virto, responde a un modelo de hospital de alta especialización, docente e investigador, centrado en la asistencia al paciente. Con 35.000 metros cuadrados de uso sanitario, el edificio compacto y de nueva construcción está diseñado para minimizar los recorridos y maximizar el acceso de luz natural, optimizando para ello su forma flexible para futuras ampliaciones y a su vez la economía constructiva. Las comunicaciones verticales se potencian como estrategia de aproximación rápida y sencilla al enfermo, y mediante un gran atrio central y unas pasarelas se asegura la comunicación directa y la relación espacial entre las distintas áreas.











