Centro Toyota Aizuma, Aichi
Kazuyo Sejima & Associates- Tipo Cultura / Ocio Educación
- Material Vidrio
- Fecha 2006 - 2010
- Ciudad Aichi
- País Japón
- Fotografía Masao Kohmura
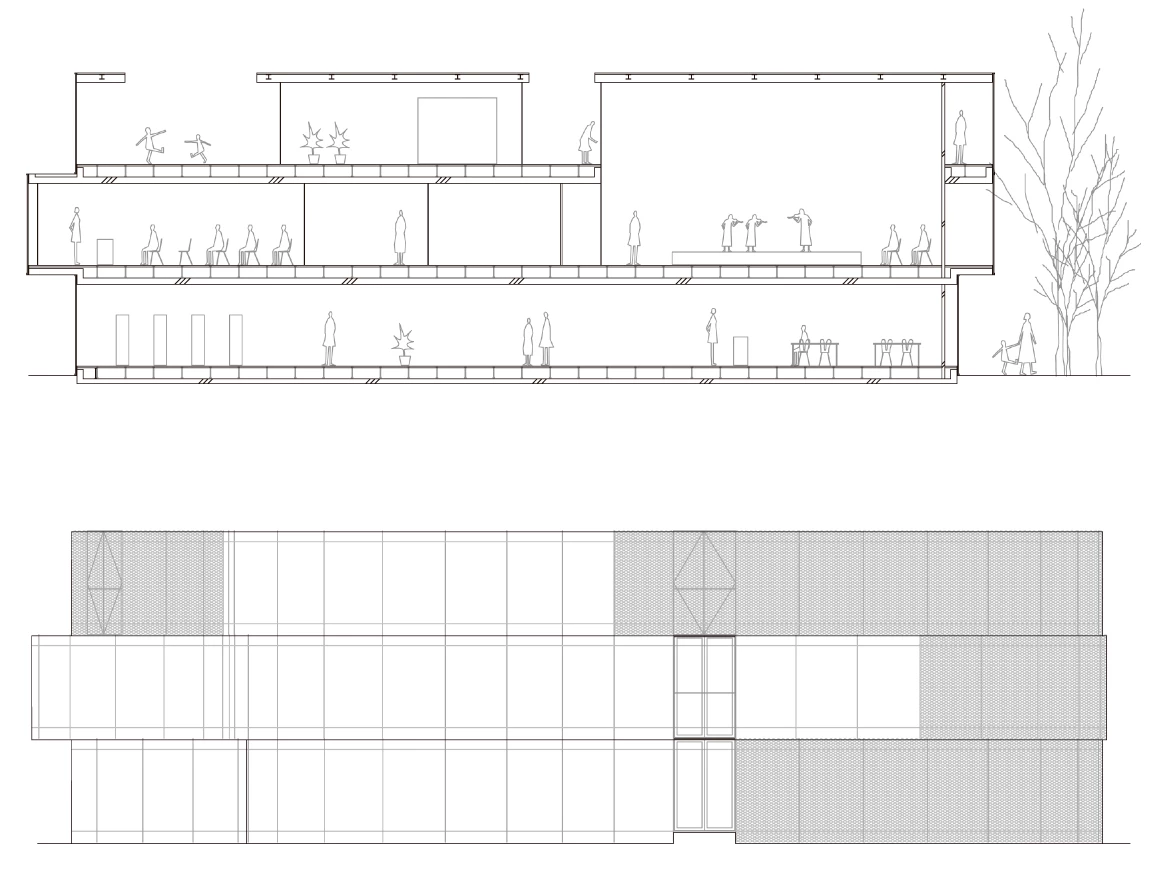
Situado frente a campos de arroz y montañas, este edificio sirve de centro comunitario educacional de mediana escala para la población del entorno. El centro acoge programa diverso como biblioteca, salón comunitario, sala para madres e hijos, aulas seminario, talleres y espacios de descanso. Las diferentes zonas del programa se reparten por tres plantas y se envuelven con perímetros sinuosos de forma ameboide y diferente, de manera que sobresalen unos sobre otros y crean terrazas o voladizos. Cada uno de los niveles tiene un cerramiento de vidrio independiente, definiendo la imagen exterior por los retranqueos y tangencias de las curvas de los planos de fachada.
Las zonas de actividades se envuelven con paramentos de vidrio —a excepción de las salas auditorio, que además son de doble altura—. El centro se concibe para que el público pueda acudir sin un propósito concreto, y que se compartan todas las actividades; para ello pretende ser abierto y transparente, y que la gente pueda percibir el exterior desde dentro, con espacios luminosos y diáfanos. La envolvente vidriada permite crear conexiones con el entorno, y varias aberturas en el forjado de cubierta crean espacios de terraza en la planta superior para disfrutar el paisaje.












Arquitecto Architect
Kazuyo Sejima & Associates
Colaboradores Collaborators
Takashi Suo, Koji Yoshida, Naoko Kawachi, Nobuhiro Kitazawa
Consultores Consultants
Sasaki Structural Consultants: Mutsuro Sasaki, Hideaki Hamada, Tarsumi Terado (estructura structural engineering); P.T. Morimura & Associates (instalaciones mechanical engineering)
Fotos Photos
Masao Kohmura