Centro Haibing de la Universidad de Nankai, Tianjin
Vector Architects- Tipo Campus universitario Educación Universidad
- Material Hormigón
- Fecha 2017 - 2019
- Ciudad Tianjin
- País China
- Fotografía Chen Hao Shengliang Su
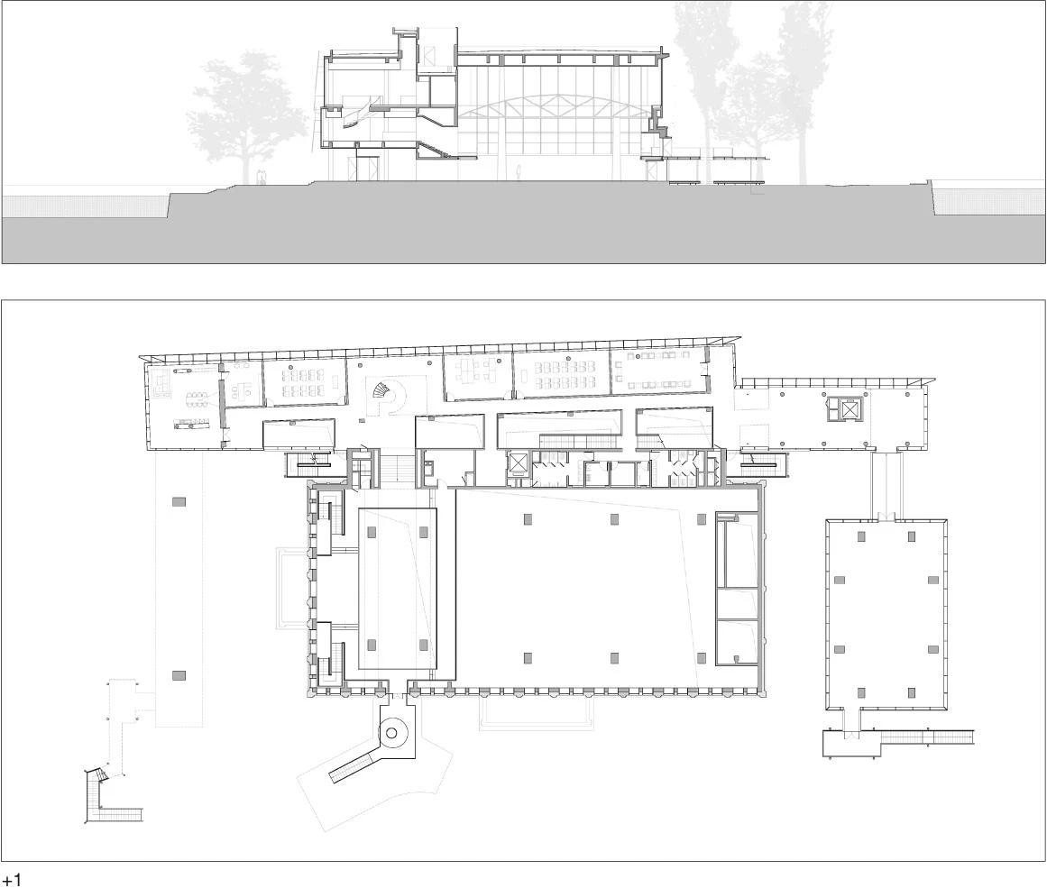
El objetivo princial del proyecto consiste en enriquecer el antiguo campus de la Universidad de Nankai con un espacio multifuncional para estudiantes, profesores y exalumnos. El solar está flanqueado por agua a ambos lados, da en su orientación este al lago de la Herradura y se sitúa en el eje central del campus original de la universidad, construido en los tiempos de la primera República China, hace ya un siglo. El Centro Haibing es un intento de dar una respuesta espacial a un contexto tan concreto y singular, con el objetivo de estimular un estilo de vida moderno que respete, al mismo tiempo, la conformación histórica del campus.
Esta respuesta espacial se ha hecho depender de algunos temas centrales que se tuvieron en cuenta desde el comienzo del proceso de diseño, especialmente la pregunta de cómo el nuevo edificio podría relacionarse de una manera más estrecha con el agua, y relacionarse asimismo con el comedor preexistente en el enclave, un edificio de ladrillo rojo. Todo ello preservando todo lo posible el arbolado. Con este fin, se optó por renunciar a una estrategia de demolición y reconstrucción a gran escala, para embarcarse en un proyecto sensible al contexto, en el que lo viejo y lo nuevo pudieran ligarse de una manera equilibrada y auténtica.











Obra Work
Centro Haibing de la Universidad de Nankai Haibing Center of Nankai University
Cliente Client
Nankai University, Zhide Foundation
Arquitectos Architects
Vector Architects / Gong Dong (socio partner); Han Zhang (director de proyecto project architect); Liaohui Guo (arquitecto asociado associate architect); Liwen Zhang, Jinteng Li (dirección de obra site architect); Chaoying Feng, Wei Tao, Liwen Zhang, Jinteng Li, Xiaokai Ma, Liangliang Zhao, Zhenqiang Chen, Jian Wang, IHsiu Chang, Gong Chen, Edward Evva (equipo team)
Colaboradores Collaborators
China Academy of Building Research (estructura e instalaciones structure and MEP); Binglian Yang, Wei Xu (LDI); Congzhen Xiao, Dewen Chu, Yanzhe Mao, Shuang Zhao (estructura structure); Peng Zhang, Chuanyong Zhou, Xiaofei Li, Jian Dang (instalaciones MEP); Toryo International (iluminación lighting); JoRon Sofron Architectural Consulting (fachada facade)
Superficie Built Area
6.662 m²
Fotos Photos
Chen Hao, Su Shengliang