Centro de Escultura Nasher, Dallas
Renzo Piano Building Workshop- Tipo Cultura / Ocio Museo
- Material Piedra Travertino
- Fecha 1999 - 2003
- Ciudad Dallas (Texas)
- País Estados Unidos
- Fotografía Michel Denancé Squire Haskins Timothy Hursley
Poseedor de una de las mayores colecciones privadas de escultura del mundo, el empresario tejano Ray Nasher rechazó las ofertas que le habían dirigido varios museos para exponer sus piezas y decidió construir un museo propio. Situado en el centro de la ciudad de Dallas, el conjunto está compuesto por un edificio de alrededor de 5.000 metros cuadrados y por un jardín de 6.200 metros cuadrados. Este último permite aislarse de la ajetreada ciudad y funciona a modo de museo al aire libre en el que las obras dialogan con la naturaleza; en uno de sus extremos se asienta la edificación.
Como un oasis recién creado en medio de la aglomeración urbana, el nuevo jardín se delimita con muros discontinuos de travertino y se rehúnde ligeramente respecto al nivel de calle, evocando un yacimiento arqueológico, para producir un cierto misterio. El paisajista Peter Walker se ha hecho cargo de un diseño que impone un trazado alineado con los muros interiores del museo.
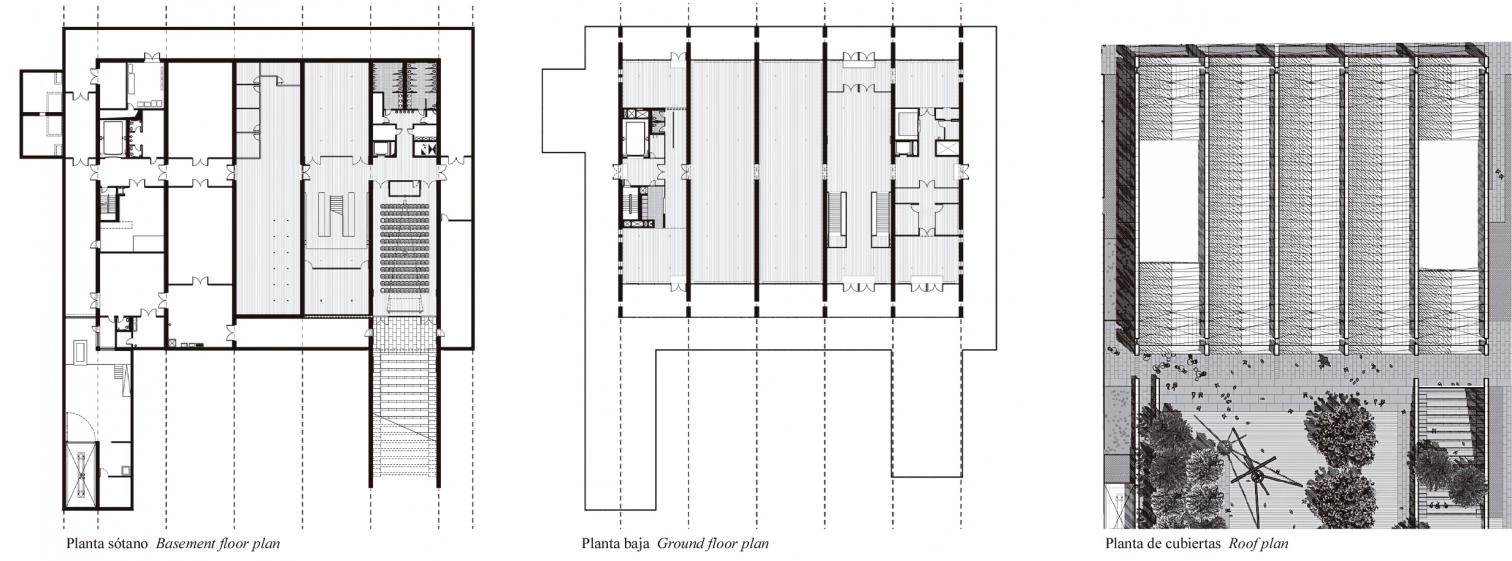
El edificio se compone de dos niveles: en el de acceso se distribuyen tres salas de exposición, oficinas, una sala de juntas y una tienda, mientras que el nivel inferior alberga una única sala para obras especialmente sensibles a la luz, espacios de servicios y un auditorio que está conectado con una zona aterrazada del jardín y permite así la creación de un teatro al aire libre. Tanto en el interior como en el exterior las obras expuestas proceden principalmente de la Colección Nasher, aunque también hay algunas provenientes de otras colecciones. Como no todas las esculturas se pueden exponer de una vez, se lleva a cabo una rotación constante cuyo objetivo es mostrar la colección completa y fomentar de esta manera el interés del público.
Mediante una serie de muros paralelos espaciados uniformemente se organizan las funciones y la estructura del museo. Las salas configuradas de esta manera se cierran con fachadas y cubierta de vidrio, creando así una vista continua desde la calle a través de los espacios de exposición y hasta el jardín de esculturas. Estas perspectivas confieren al edificio una apariencia de ligereza y transparencia.
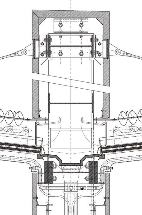
A diferencia de las tradicionales salas de las pinacotecas, en este proyecto se ha utilizado la máxima iluminación natural posible, para permitir apreciar las variadas formas y texturas propias de las esculturas. El sistema de protección solar, compuesto de paneles de aluminio moldeado, está diseñado para facilitar el paso de la luz difusa del norte y evitar la iluminación directa. La especial composición del vidrio, que tiene un bajo contenido en hierro, proporciona una mayor transparencia.





















Cliente Client
The Nasher Foundation
Arquitectos Architects
Renzo Piano Building Workshop; E. Baglietto (socio responsable partner in charge)
Colaboradores Collaborators
B.Terpeluk (con with) S. Ishida (socio senior partner), B. Bauer, L. Pelleriti, S. Scarabicchi (socio partner), A. Symietz, E. Trezzani (y and) G. Langasco (delineante CAD Operator); Y. Kashiwagi; F. Cappellini, S. Rossi (maquetas models)
Consultores Consultants
Peter Walker & Partners (paisajismo landscape); Ove Arup & Partners (estructura e instalaciones structure and mechanical engineering); Interloop A/D, Beck Architecture (arquitectos consultores consulting architect)
Contratista Contractor
HCBeck
Fotos Photos
Michel Denancé, Squire Haskins, Timothy Hursley