Centro de educación primaria, Castelldefels
Carme Pinós- Tipo Colegio e instituto Educación
- Fecha 2006
- Ciudad Castelldefels (Barcelona) Barcelona
- País España
- Fotografía Duccio Malagamba
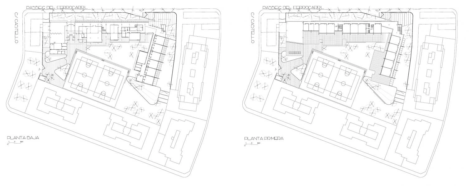
En el interior de una manzana trapezoidal del Etejido residencial de Castelldefels, población del Bajo Llobregat barcelonés se encuentra el solar, uno de cuyos linderos limita con las vías férreas. Esta frontera física y sonora, junto al impacto de las visuales que se proyectan desde las viviendas colindantes, van a convertirse en los principales condicionantes del proyecto. El edificio responde ante estos factores posicionándose como cierre introverido de la manzana; se abre hacia un patio interior protegiendo el juego de los alumnos de los ruidos procedentes del tránsito de los trenes.

El edificio se remata con una cubierta inclinada constituida por piezas de chapa metálica que se pliegan sobre sí mismas. Debido a su visibilidad desde las viviendas circundantes, es tratada como una quinta fachada.
Una barrera vegetal en la fachada norte amortigua la huella acústica del transporte ferroviario al tiempo que enmarca los contados huecos de una fachada compacta que logra transmitir una imagen de protección ante un exterior inhóspito. Las perforaciones en este frente se presentan en una composición contrapeada, permitiendo un juego plástico que respeta una ordenada estructura modular, dotando de coherencia y unidad al conjunto.

Por el contrario, los alzados que rodean el patio se abren con grandes superficies acristaladas, fomentando la conexión visual con el exterior desde las aulas. La situación de la construcción en el solar proporciona un patio de dimensiones generosas, que orienta al usuario, al ofrecer una visión total del edificio. La horizontalidad del conjunto se enfatiza mediante el vuelo que prolonga la continuidad de las cubiertas, además del contraste del blanco del hormigón de la planta baja frente a la oscura chapa que recubre las plantas superiores.

El acceso se produce desde una de las esquinas, a través de un gran espacio acristalado de control que da paso a la planta baja, donde se encuentran los elementos comunes, que se disponen con mayor libertad para permitir la transparencia bilateral. Las piezas de uso colectivo, como la sala polivalente y el comedor, se colocan aparentemente independientes de la estructura, quedando los pilares a la vista.

El marcado contraste entre los materiales de las fachadas se refuerza con una disposición aterrazada de los volúmenes de las aulas, protegidas por el vuelo de los aleros de las cubiertas, que subrayan su manifiesta horizontalidad
De este modo, los espacios parecen encontrarse dentro del jardín, permitiendo que los niños toquen la tierra, como ocurría en los proyectos escolares de los años cincuenta de Jacobsen o Neutra.



En las plantas superiores se disponen las aulas orientadas hacia el interior de la parcela y de espaldas a las vías, reservando para las circulaciones los espacios más al norte, a modo de colchón frente al tren. Los interiores del edificio se proyectan con una escala doméstica pensando en la edad de sus alumnos, presentando alturas más bajas. En estos niveles se evita la aparición de los pilares para dotar una imagen que integra continuidad y fragilidad.

Cliente Client
Generalitat de Catalunya
Gestió d'Infrastructures
Arquitecto Architect
Carme Pinós Desplant
Colaboradores Collaborators
Juan Antonio Andreu, Samuel Arriola, Matteo Caravatti, David Sebastián, Agustín Pérez Torres
Consultores Consultants
Brufau (estructura structure); RC Enginyers (instalaciones mechanical engineering); CBA, Josep Camps (mediciones y presupuestos measurements and budget)
Contratista Contractor
COPCISA
Fotos Photos
Duccio Malagamba