Centro de Desarrollo, Calamonte
NGNP Arquitectos- Tipo Institucional
- Fecha 2016
- Ciudad Calamonte Badajoz
- País España
- Fotografía Jesús Granada
En la localidad de Calamonte, al norte de la provincia de Badajoz —a unos 60 kilómetros de la capital provincial y a tan solo siete de Mérida, la capital extremeña—, la parcela que ocupa el Centro Integral de Desarrollo (CID) se sitúa en el borde urbano, sobre una pequeña plataforma de terreno que domina visualmente los campos agrícolas circundantes. De esta ubicación, que dota a la propuesta de un valor especial en la relación ciudad-campo-paisaje, parten las principales decisiones conceptuales y formales que la inspiran. Además, la presencia del edificio a lo lejos, desde las vías de acceso rodado, la autopista A-66 y la Carretera de Sevilla, provoca también necesariamente una respuesta por parte del proyecto.

La particular ubicación del centro determina las principales decisiones del proyecto; así, una cubierta facetada hace visible el edificio en la distancia y al mismo tiempo entra en diálogo con el paisaje de cerros circundante.

Así, la cubierta emerge como la pieza fundamental del diseño: visto desde la distancia, el edificio completa su compacta presencia gracias a ese elemento, dialogando con el paisaje de cerros que circundan la comarca. Vista de cerca, esta cubierta proporciona mayor altura a los espacios que lo requieren, como la entrada o el salón de actos, y confiere asimismo un carácter especial y dinámico al ambiente interior. El volumen del CID se implanta en la parcela —de proporción rectangular y orientación norte-sur— adaptándose a su geometría longitudinal. El concepto generador del edificio en planta es la apertura de una grieta-patio en su eje central, que lo atraviesa en toda su longitud, convirtiéndose en el espacio principal del proyecto. En la fachada norte, esta grieta configura el acceso público entre volúmenes, y continúa, una vez superado el vestíbulo, caracterizada ya como un espacio más introspectivo.



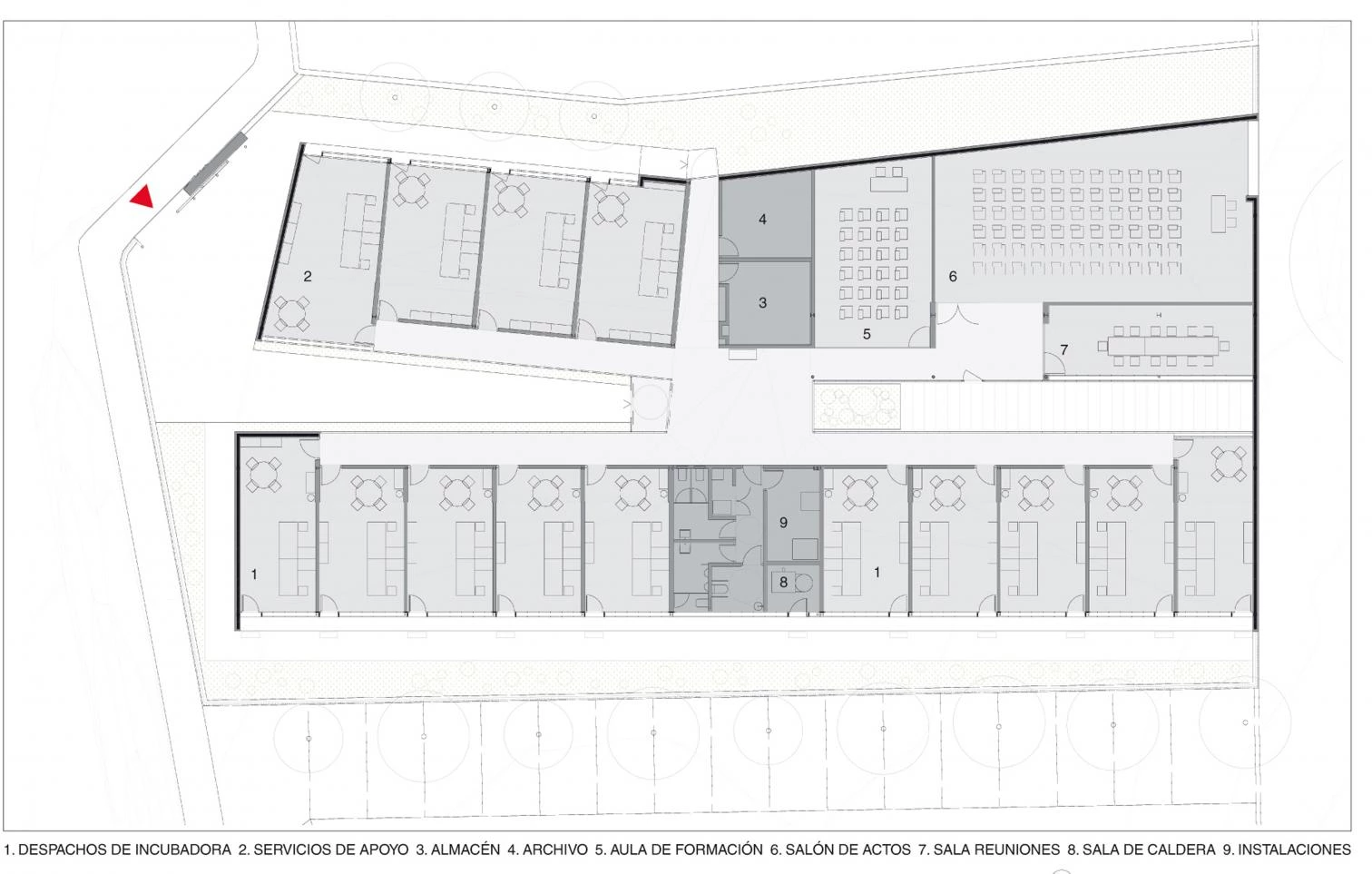
En busca de la mayor flexibilidad y economía de circulaciones, los usos —incubadora de empresas, oficinas de apoyo y salas de reuniones—, se disponen en torno al vestíbulo central, que se convierte en el corazón del edificio.

El programa, consistente en funciones administrativas de apoyo a los emprendedores, se organiza con la mayor racionalidad programática y economía de circulaciones, a fin de garantizar la flexibilidad requerida. Los usos se agrupan en tres unidades claramente diferenciadas: la incubadora de empresas, las oficinas de apoyo y las salas de reuniones, dispuestos todos ellos en torno al vestíbulo central, centro de gravedad del edificio que facilita la rápida orientación del visitante. La escueta paleta de materiales utilizada pretende reforzar la potencia geométrica del volumen: además de la blanca envolvente exterior, acabada con una membrana líquida de poliuretano, sólo aparece hormigón visto en techos y suelos, y diferentes grados de transparencia, del vidrio al policarbonato celular de una o dos capas, que matizan la entrada de luz y controlan la radiación solar directa.

El proyecto utiliza una paleta de materiales muy limitada —hormigón, vidrio y policarbonato celular con diferentes grados de transparencia—, con el objetivo de reforzar la potencia geométrica y formal del volumen.


Cliente Client
Diputación Provincial de Badajoz
Arquitectos Architects
NGNP Arquitectos (José Antonio Plaza, Juan Carlos Herrera y Fernando Garrido)
Colaboradores Collaborators
Antonio Vallejo (arquitecto técnico quantity surveyor)
Consultores Consultants
María Luisa Lorenzo (estructura structure); Estanislao Fernández (ingeniería de instalaciones mechanical engineering)
Contratista Contractor
Coalfe Construcciones Extremeñas
Superficie construida Floor area
789 m²
Presupuesto Budget
648.014 €
Fotos Photos
Jesús Granada