- Tipo Centro de congresos Cultura / Ocio
- Material Caliza
- Fecha 2009
- Ciudad Lérida
- País España
- Fotografía Christian Richters Filippo Poli
- Marca Higini Arau
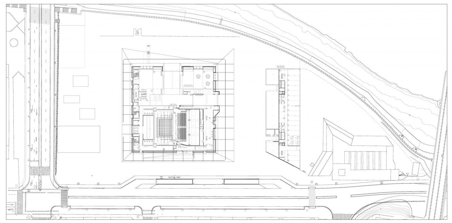
Al borde de la ciudad, a orillas del río Segre y próximo a la estación del AVE, el teatro y centro de convenciones La Llotja tiene como telón de fondo la Seu Vella, la catedral histórica de Lérida, situada en lo alto de un cerro. El proyecto, que resultó ganador en el concurso celebrado en 2005, contempla desde tres diferentes escalas la puesta en escena del edificio: a gran escala, conecta el río y la montaña; a escala urbana, forma con el río una composición equilibrada; y, al nivel de la calle, ofrece protección frente al sol y la lluvia.




El complejo está formado por tres partes: la pieza principal, con una superficie de 37.500 metros cuadrados, una segunda pieza destinada a oficinas de Mercolleida, con 2.591 metros cuadrados de superficie —ambas comunicadas bajo rasante a través de un aparcamiento subterráneo— y, entre ambas, una extensa plaza pública, de 15.325 metros cuadrados, desde donde se accede al auditorio y que aprovecha el espacio a nivel de calle protegido por el voladizo, convirtiendo las escaleras del edificio adyacente en una tribuna para la celebración de eventos al aire libre.





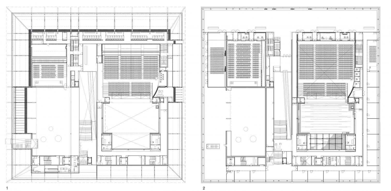
En el corazón del edificio, una escalera monumental parte del nivel de la calle hasta el espacio multifuncional en la primera planta. Una rampa conduce hacia el foyer en el segundo nivel, donde una ventana panorámica mira hacia la ciudad y el río, y desde donde se accede al teatro —que también funciona como sala de conferencias—, a las salas de reuniones y a la sala pequeña, separada por un muro de vidrio. La oficina de prensa, los salones VIP y el centro de reuniones se sitúan en la parte del edificio orientada hacia la ciudad, y se accede a ellos a través de un pasillo interior. El complejo está pensado para ser recorrido a través de una promenade de escaleras y rampas que conecta los espacios entre sí.



La estructura combina un núcleo de hormigón y una carcasa perimetral metálica para soportar los vuelos de hasta 19 metros que definen el carácter singular del centro. El núcleo soporta los esfuerzos horizontales de los voladizos a través de muros transversales y longitudinales de 40 centímetros de espesor; estos muros definen las salas que componen el programa. El revestimiento exterior del edificio, de placas de piedra caliza, evoca la imagen de los campos cultivados. Los interiores son principalmente muros estucados en blanco y suelos de madera —en el foyer— y mármol —en el vestíbulo de acceso y la sala multifuncional—. En referencia a la huerta de la región, árboles de luz se recortan en las paredes de madera de la sala principal, mientras en el techo se dibujan pequeñas hojas luminosas.










Cliente Client
Centre de Negocis i de Convencions S.A.
Arquitectos Architects
Mecanoo Architects, LABB Arquitectura (arquitecto local local architect)
Colaboradores Collaborators
Ardevols S.L
Consultores Consultants
ABT bv, BOMA (ingeniería estructural structural engineering); Peutz b.v., Higini Arau (acústica acoustics); Deerns, Einesa (instalaciones mechanical engineering); Basalt Nieuwegein; Ardevols S.L (presupuestos cost consultant); Einesa (seguridad antiincendios fire safety)
Contratista Contractor
Dragados
Fotos Photos
Christian Richters, Filippo Poli