Centro de Arte Contemporáneo, Santiago de Compostela
Álvaro Siza- Tipo Centro cultural Cultura / Ocio
- Material Piedra Granito
- Fecha 1988 - 1993
- Ciudad Santiago de Compostela
- País España
- Fotografía Javier Azurmendi
La segunda realización del maestro portugués en España es también una de sus obras más logradas de los noventa. Aunque su arquitectura fragmentada no siempre ha sido el marco más adecuado para la exhibición de arte contemporáneo, es ejemplar el diálogo de este museo con la ciudad histórica. El solar triangular y su emplazamiento sugirieron la construcción de dos cuerpos en L que se articulan para formar un patio interior y crear el vestíbulo de entrada en el lado más próximo al portal del convento de Santo Domingo de Bonaval. La volumetría del conjunto y el revestimiento de granito lo convierten en un elemento mediador entre las distintas escalas que conviven en su entorno; en el interior, los lucernarios semiocultos por losas horizontales de las salas de la colección permanente hacen resbalar una luz difusa por las paredes.


Plano situación


En la superficies exteriores se ha optado por un aplacado de granito que varía de color para permitir una lectura clara de los diversos volúmenes que componen el edificio.



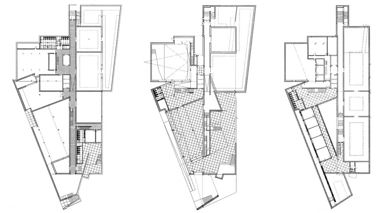
Planta sótano Planta baja Planta primera
Dos cuerpos de tres alturas con plantas en forma de L que se interpenetran por el extremo sur configuran la estructura del edificio. El programa se distribuye entre estos dos cuerpos y el patio triangular de conexión entre ellos.

Alzados generales

Alzado hacia el convento y la iglesia
Entre los portales de la iglesia y el convento surge un nuevo espacio público. El centro cumple una función mediadora entre las escalas de los edificios circundantes.





Secciones transversales y longitudinales


Las secciones muestran la compleja articulación entre los espacios. Las salas de la última planta están iluminadas por lucernarios semiocultos por losas de hormigón.

La escalera principal está inserta dentro de la espina central que organiza las circulaciones y permite el acceso a las salas de exposición y a las dependencias anexas.

En el interior, el acabado terso de las superficies y el tratamiento de la luz contribuyen a realizar la cualidad escultórica del espacio. Arriba, el encuentro entre los dos cuerpos en la planta tercera.
Cliente Client
Xunta de Galicia.
Arquitecto Architect
Alvaro Siza.
Colaboradores Collaborators
Joan Falgueras, Joáo Sabugueiro, Yves Stump, Jane Considine, Tiago Faria, Anton Graf, Elisário Miranda, Mona Trautman.
Contratista Contractor
San José.
Fotos Photos
Javier Azurmendi.