Centro de acogida para mujeres sin hogar en Barcelona
Vivas Arquitectos- Tipo Vivienda
- Material Madera
- Fecha 2023
- Ciudad Barcelona
- País España
- Fotografía José Hevia
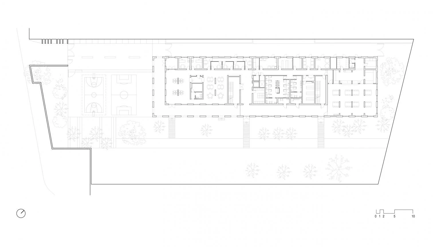
El Centro Residencial de Primera Acogida Sant Gervasi de Barcelona tiene capacidad para albergar a cien mujeres sin hogar. Obra del estudio VIVAS Arquitectos, fundado por César Vivas y Cristian Vivas, el centro de día y de noche ofrece asistencia y acompañamiento a cada residente hacia los distintos recursos sociales, laborales, educativos y médicos, con el fin de poder reconstruir una vida autónoma. Desde esta perspectiva, las instalaciones se entienden como una primera puerta para la reinserción de estas mujeres en la sociedad.
El programa se organiza en planta de manera clara y modulada, gracias a la solución constructiva empleada: muros portantes de madera contralaminada, dispuestos de forma paralela a distancias de 3,40 metros. El principal material constructivo es la madera, aplicada mediante sistemas industrializados, que han permitido reducir los plazos de ejecución de la obra. Este material ofrece un buen aislamiento, consiguiendo a su vez un edificio de consumo casi nulo, además de aportar sensación de calidez al equipamiento asistencial. Rodeado por un jardín que recorre gran parte de su perímetro, el prisma rectangular de unos 60 m de largo, 16 m de ancho y altura máxima de 9 m, subdividida en tres plantas, se vacía en determinados puntos para crear porches, terrazas y espacios exteriores. Los espacios intermedios facilitan la socialización.















Cliente Client
BIMSA, Barcelona d’Infraestructures Municipals
Arquitectos Architects
Vivas Arquitectos
Colaboradores Collaborators
Manuel Arguijo (estructuras structures); Eletresjota Tècnics Associats SLP (instalaciones mechanical engineering); DEKRA (sostenibilidad sustainability); Ohrizons (paisajismo landscape); Audiotec (acústica acoustics); QEstudi (aparejador quantity surveyor); Bernadí, Mobles Bràfi (mobiliario furniture); Vivas Arquitectos (dirección facultativa project management); AT3 (dirección ejecutiva executive management)
Contratista Contractor
CRC Obras y Servicios; KLH, Velima (madera estructural structural timber)