Centro cultural de Suzhou
Christian de Portzamparc- Tipo Centro cultural Cultura / Ocio Auditorio Museo
- Material Aluminio Metal
- Fecha 2020
- Ciudad Suzhou
- País China
- Fotografía Shao Feng
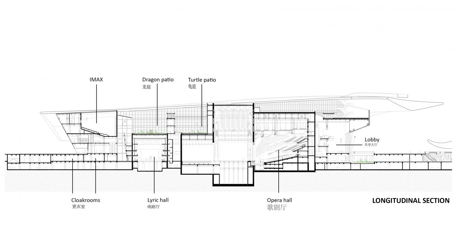
A orillas del lago Tai, en el distrito de Wujiang de la ciudad de Suzhou, conocida por sus canales y situada a 110 kilómetros de Shanghái, se encuentra este centro cultural obra del francés Christian de Portzamparc, rodeado por una cinta de acero y aluminio en forma de ocho con 500 metros de longitud. La estructura metálica se extiende por la cubierta y la fachada e incorpora entre curvas y contracurvas un mirador a 40 metros de altura.
Con una superficie total de 202.000 metros cuadrados, el conjunto está dividido en dos alas: la norte, que contiene un auditorio con capacidad para 1.600 espectadores, una sala modular para representación de espectáculos con 600 asientos, un conservatorio de música y un cine; y la sur, que alberga espacios educativos, un centro de convenciones, y galerías expositivas para dos museos dedicados a la historia y a la ciudad. El complejo se completa con locales comerciales, restaurantes y cafeterías.


















