Casas de cristal, Ámsterdam
MVRDV- Tipo Comercial / Oficina Rehabilitación Cultura / Ocio Tienda
- Material Vidrio Ladrillo Cerámico
- Fecha 2012 - 2016
- Ciudad Ámsterdam
- País Países Bajos
- Fotografía Daria Scagliola & Stijn Brakkee TU Delft
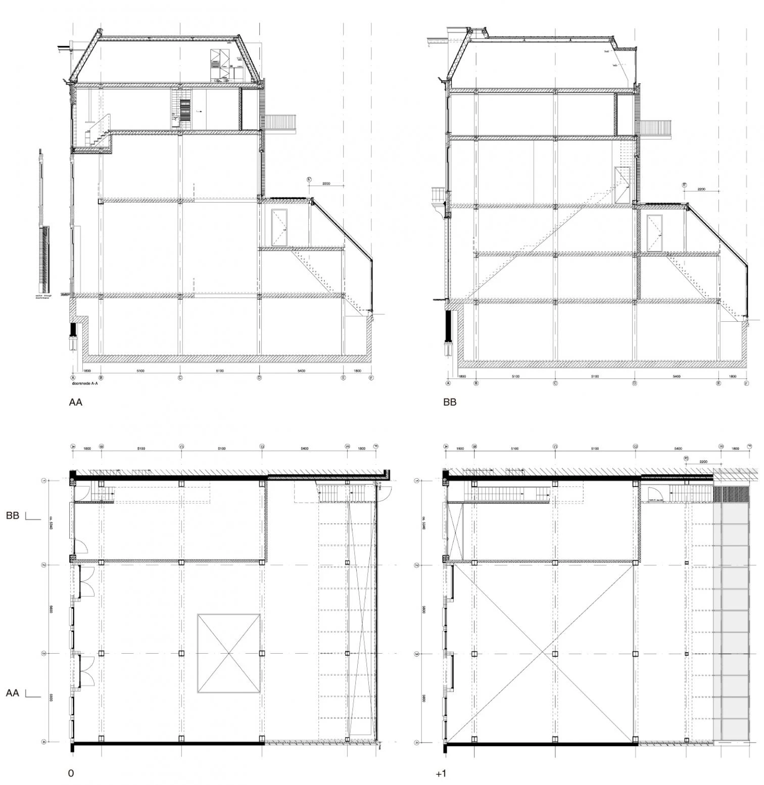
Destinado a albergar una tienda insignia en la calle PC Hooftstraat —la avenida de lujo del centro de Amsterdam—, este edificio sustituye a dos antiguas casas tradicionales cuyo volumen ha sido transformado para ampliar el espacio interior y adecuarlo al uso comercial. El nuevo diseño reproduce la composición original para no renunciar a las características propias de su arquitectura, pero trata de otorgarle una imagen más actual, para lo cual hace uso del vidrio como recurso de reproducción contemporánea. Así, la nueva fachada es una adaptación formal y material de la versión original. Ya que el volumen construido se modifica para adaptarse a la normativa vigente, la fachada se escala para mantener la composición de los elementos originales. De la misma forma, el vidrio se aplica en forma de ladrillos, por lo que, pese a cambiar su materialidad, el proceso constructivo es similar. Por otro lado, el frente se compone como un degradado que parte de los ladrillos translúcidos y va cambiando hasta ladrillos cerámicos, haciendo visualmente permeables las plantas inferiores y protegiendo las superiores. Para conseguir la máxima transparencia en el muro de vidrio, la Universidad de Delft y las constructoras desarrollaron un pegamento transparente de alta resistencia adherido mediante radiación ultravioleta.




















Obra Work
Crystal Houses
Cliente Client
Warenar Real Estate
Arquitectos Architects
MVRDV / Gietermans & Van Dijk
Colaboradores Collaborators
Winy Maas with Gijs Rikken, Mick van Gemert, Marco Gazzola, Renske van der Stoep and Antonio Luca Coco (MVRDV); Wim Gietermans, Arjan Bakker, Turul Avuçlu (Gietermans & Van Dijk)
Consultores Consultants
Poesia (ladrillos de vidrio glass brick manufacturers); Siko (importador de pegamento Delo importer of Delo glue); Delft University of Technology (investigación research); CIID (infografías visualizations)
Contratista Contractor
Wessels Zeist; Brouwer & Kok / ABT (constructor constructor) Superficie construida Built-up area 620 m² (comercio retail) + 220 m² (vivienda housing)
Fotos Photos
Daria Scagliola & Stijn Brakkee; TU Delft; MVRDV