Casa Viva la Vega en Albolote (Granada)
Serrano + Baquero Arquitectos- Tipo Vivienda Casa
- Material Ladrillo
- Fecha 2021
- Ciudad Albolote (Granada)
- País España
- Fotografía Fernando Alda
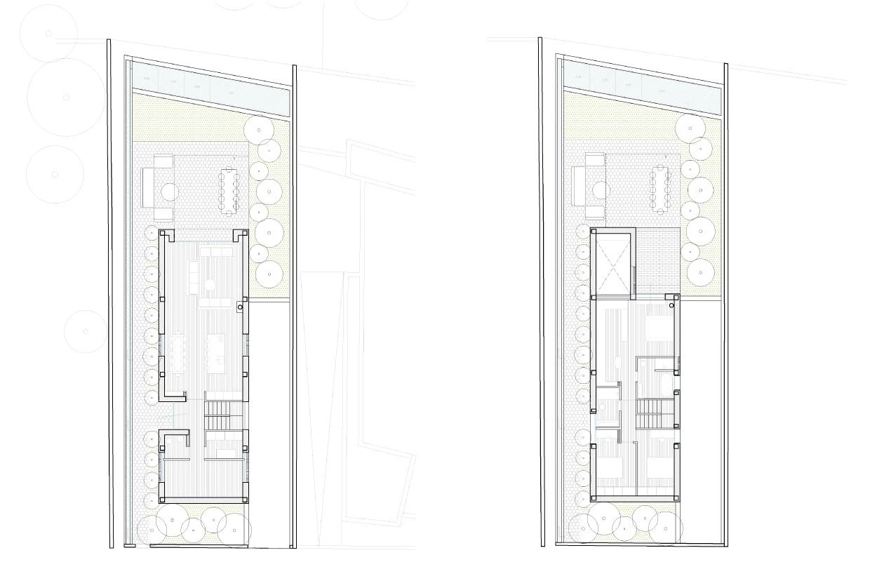
La firma de Juan Antonio Serrano y Paloma Baquero recibe el encargo de construir una vivienda que evocase los recuerdos de infancia de sus clientes, vinculados a la comarca de la Vega de Granada, donde se ubica la localidad de Albolote. Diferentes elementos de la tradición constructiva local de carácter agrícola se mezclan en esta construcción, como las celosías que tamizan la luz interior a semejanza de los secaderos de tabaco dispersos en el paisaje.
Materializado a través de hormigón y ladrillo, el volumen longitudinal se adapta a la parcela estrecha, condicionada por la servidumbre de paso que recorre uno de los lados largos, necesaria para realizar las labores diarias de mantenimiento de la acequia, que linda con uno de los lados cortos. Envuelta por el rumor del agua de la acequia, esta configuración alargada también recuerda a los secaderos. Una serie de secciones establecen relaciones espaciales cambiantes que responden a su posición: muros opacos de diferentes alturas, cubiertas con inclinaciones variadas, lucernarios, celosías y ventanas que optimizan el acceso de la luz y la ventilación natural, así como las vistas que en determinados puntos cruzan por completo la casa.




























