Casa Taller en La Paisanita, Córdoba (Argentina)
Agustín Berzero Manuel González Veglia (TECTUM)- Tipo Casa Vivienda
- Material Hormigón
- Fecha 2021
- Ciudad La Paisanita (Córdoba)
- País Argentina
- Fotografía Federico Cairoli
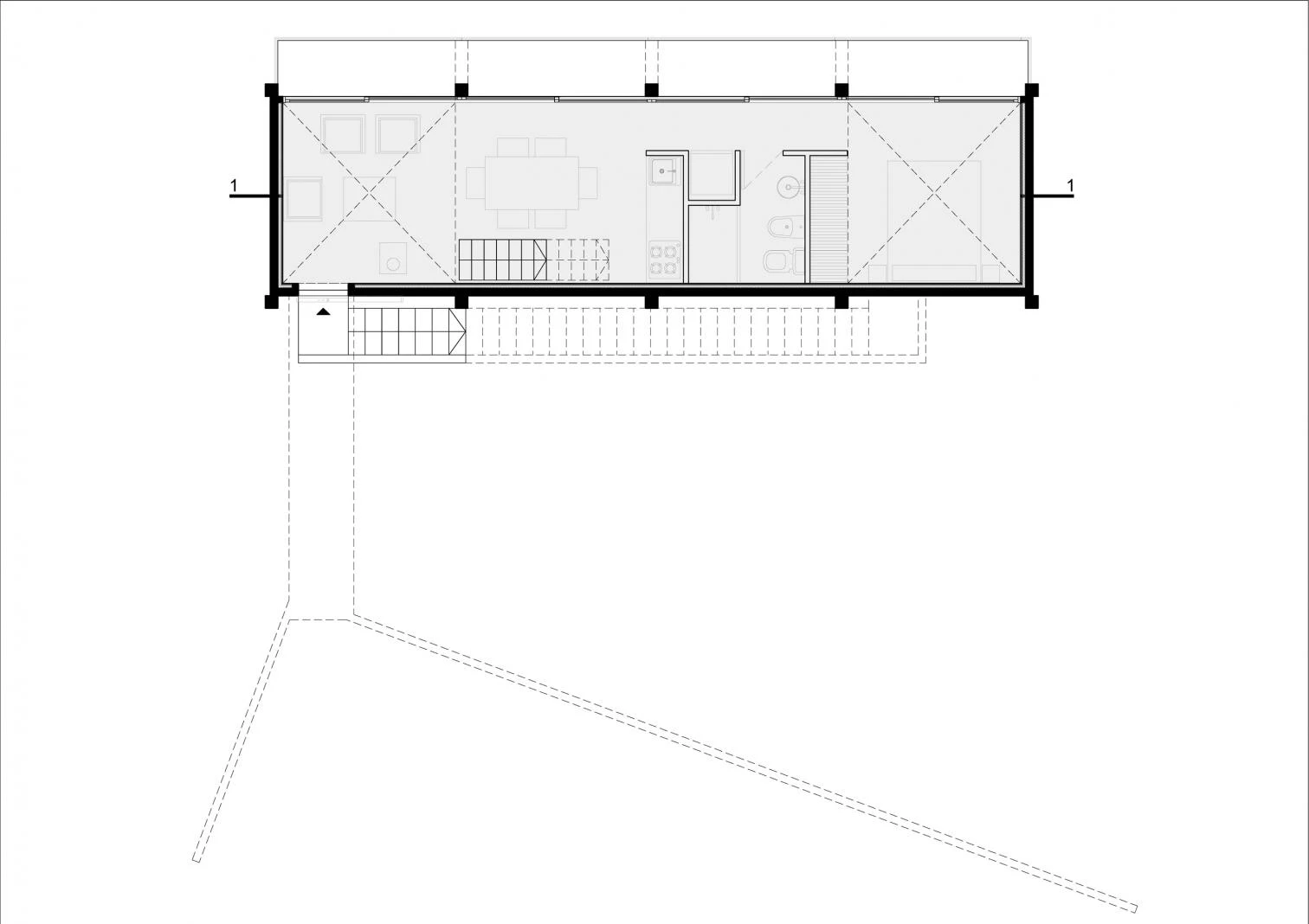
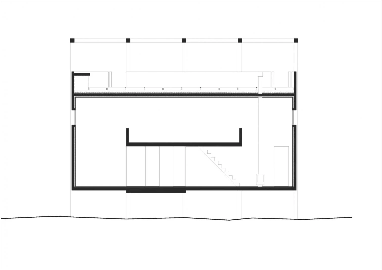
Anclada en un terreno definido por una pronunciada pendiente, la vivienda de hormigón de acabado rugoso emerge en un juego de opuestos complementarios. Elevado sobre la topografía natural con columnas, el cuerpo pesado queda coronado por un espacio abierto, cubierta-mirador desde donde se realiza el acceso principal. En el descenso un cerramiento introvertido queda suspendido sobre una abertura absoluta que muestra el interior con los revestimientos cálidos de madera.













Ficha técnica
MostrarOcultar ficha técnica
Obra Work
Casa Taller
Arquitectos Architects
Manuel González Veglia, Agustín Berzero
Consultores Consultants
Edgar Moran (ingeniero engineer)
Superficie Floor area
54 m²
Fotos Photos
Federico Cairoli