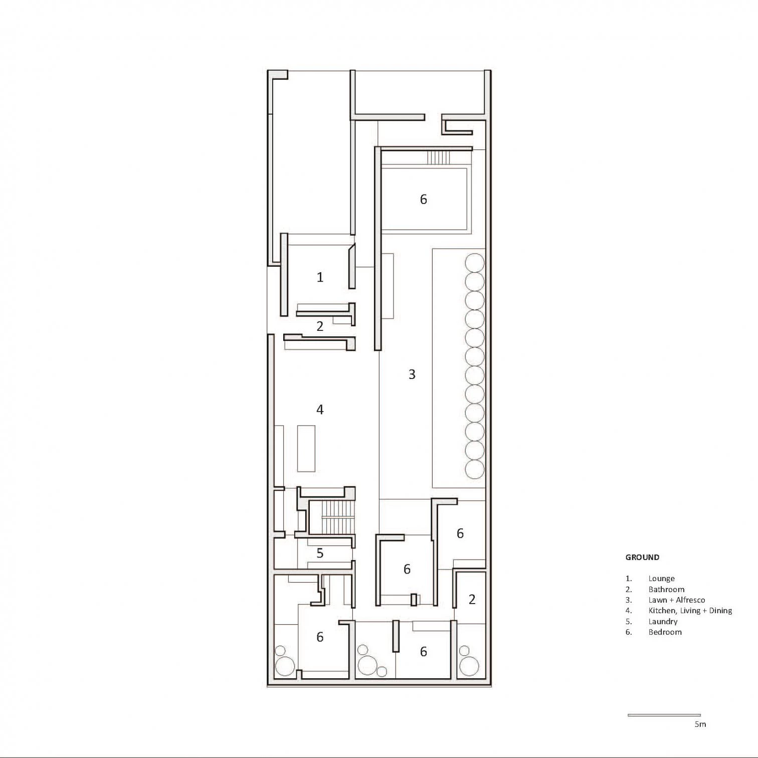
Semejante a un origami rectangular de hormigón y vidrio, esta vivienda escultórica presenta volúmenes en capas que, preservando la intimidad, conducen a un patio con jardín. La construcción de poca altura se vuelca hacia interior con muros y voladizos, adoptando el clásico modelo mediterráneo con un patio central. Obra de la firma de Melbourne FGR Architects, la casa funciona como una serie de espacios flexibles que, a través de paneles corredizos de vidrio, se conectan con la piscina, el patio y la luz del sol. Alternando superficies de hormigón mate y pulido, la paleta de materiales sobrios incluye revestimientos de madera y perfiles acero.

Fotos cortesía de v2com











