Casa LR, Cintruénigo
Lecumberri & Cidoncha Íñigo Beguiristáin- Tipo Vivienda Casa
- Ciudad Cintruénigo (Navarra)
- País España
- Fotografía Iñaki Bergera
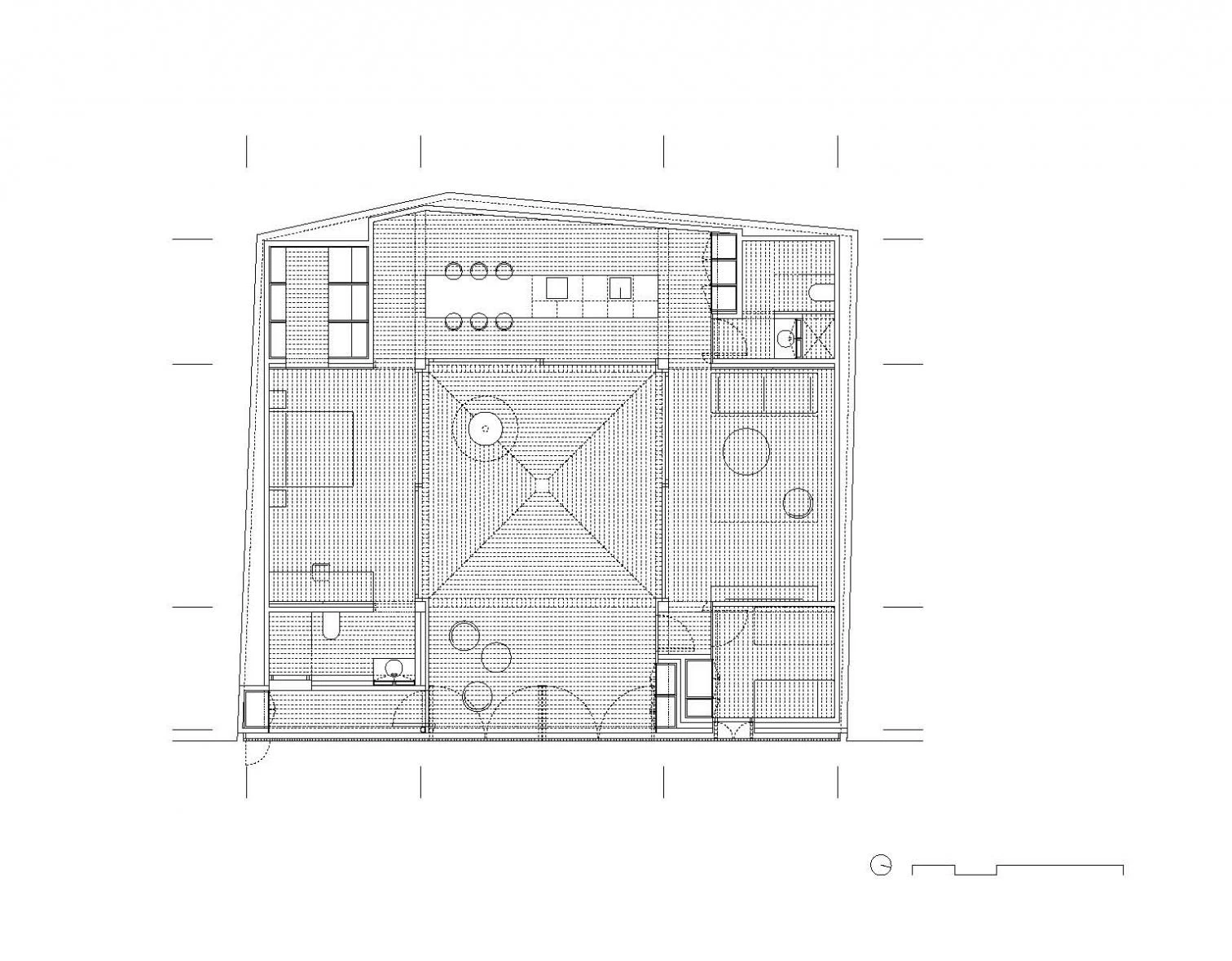
El desorden urbano en torno a una casa la empuja a replegarse radicalmente sobre sí misma y ordenarse en una clásica secuencia de estancias en torno a un gran patio cuadrangular.
Tras la opaca fachada, los servicios se relegan a las cuatro esquinas para permitir que los espacios principales de la vivienda, dotados de grandes ventanales correderos, gocen de una generosa iluminación y ventilación.








Obra Work
Casa LR, Cintruénigo, Navarra (España)
House LR, Cintruénigo, Navarre (Spain).
Arquitectos Architects
Íñigo Beguiristáin Repáraz, Antonio J. Cidoncha Pérez, Jokin Lecumberri Larrea.
Consultores Consultants
Eduardo Ozcoidi (estructura structure); Saioa Lafón, Miren Celayeta (arquitectos architects); Laura Raimundi (arquitecto técnico quantity surveyor).
Contratista Contractor
Obramas 2000; Puertas Santesteban (carpintería y mobiliario frames and furniture); Carmave (ventanas windows); Cristalería Iralde (vidrios glazing); Lineal (metalistería y zinc metal and zinc works); Enea, KP, MENU, Pedralli, SPIU, Treku (mobiliario furniture); Láser, QBO (iluminación lighting); JNF (accesorios y herrajes accesories and hardware); ICONICO (grifería y sanitarios taps and sanitary ware); JUNG (mecanismos eléctricos switches); GIRA (videoportero door system); Griesser (protección solar solar protection); La Paloma (pavimentos y revestimientos de ladrillo brick walls and pavements); Inther (sistemas correderos sliding systems).
Presupuesto Budget
162.000 €.
Superficie Area
152 m².
Fotos Photos
Iñaki Bergera.