Casa jardín, Pradillo
Hanghar- Tipo Vivienda Casa
- Material Hormigón
- Fecha 2021
- Ciudad Pradillo (La Rioja)
- País España
- Fotografía Max Hart Nibbrig
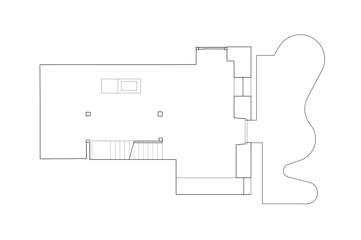
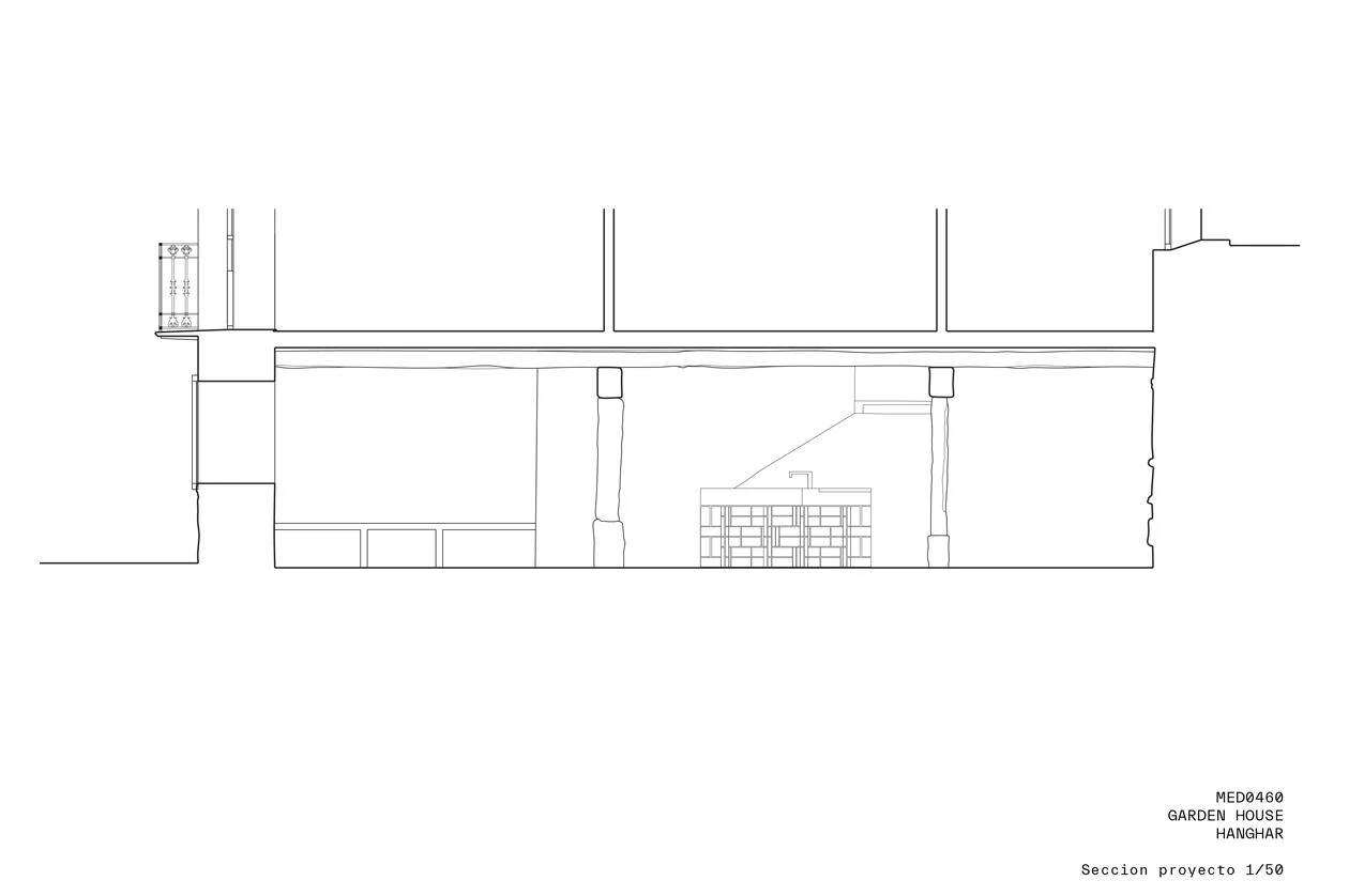
La planta baja de una casa rural, antaño destinada a guardar animales, se transforma con recursos mínimos en un espacio de ocio en continuidad con un recuperado jardín delantero.
Una sinuosa plataforma de hormigón se eleva sobre el terreno para quedar al nivel de la solera interior, lo que junto con el ensanchamiento de los huecos en fachada permite prolongar las actividades familiares al aire libre.













Ficha técnica
MostrarOcultar ficha técnica
Obra Work
Casa jardín, Pradillo, La Rioja (España)
Garden House, Pradillo, La Rioja (Spain).
Arquitectos Architects
Hanghar / Eduardo Mediero (socio partner).
Contratista Contractor
Construcciones Marcelino Maza; Carpintería Vilda (carpinterías frames).
Presupuesto Budget
54.000 €.
Superficie Area
60 m².
Fotos Photos
Max Hart Nibbrig.