Casa Humo, Futrono (Chile)
Iván Bravo- Tipo Casa Vivienda
- Material Madera
- Ciudad Futrono
- País Chile
- Fotografía Baro arquitectos Marcos Zegers
Proyecto realizado por Iván Bravo junto con Martín Rojas (arquitecto asociado), en colaboración con Juan Oyarzún.
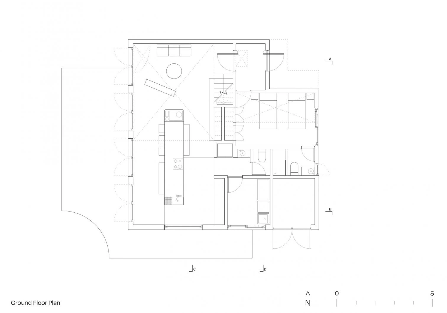
«Para que nada nos amarre / que no nos una nada». Los versos del Crepusculario de Neruda los tenía a gala una pareja que, pese a su estable relación, nunca había convivido y habitaba en apartamentos diferentes —mas próximos— de Santiago de Chile. Quizá por ello tuvieron poca prisa en hacerse una casa común, un proyecto en una aislada parcela al sur del país, junto al lago Ranco, que ha tardado en madurar diez años. Alineado a los puntos cardinales, un cubo exacto se secciona por la diagonal en dos de sus caras, ofreciendo frentes distintos: mientras las fachadas principales aprovechan su altura para perseguir las vistas del lago, las otras se inclinan hacia un hogareño acceso. Como los exteriores, las estancias se revisten con listones de madera sin desbastar, dando unidad a la secuencia espacial potenciada por las pronunciadas cubiertas que conduce desde un amplio cuarto de estar a los dormitorios, enfrentados simétricamente al final de un pasillo para que los moradores, dentro de su independencia, disfruten de la sensación de conformar juntamente su residencia en la tierra.








Casa Humo
Humo House, Futrono, Chile
Arquitectos Architects
Iván Bravo; Martín Rojas (arquitecto asociado partner architect)
Colaboradores Collaborators
Juan Oyarzún
Fotos Photos
Baro arquitectos, Marcos Zegers