Casa en Rua São Francisco de Borja en Lisboa
Ricardo Bak Gordon- Tipo Vivienda Casa
- Fecha 2023
- Ciudad Lisboa
- País Portugal
- Fotografía Francisco Nogueira
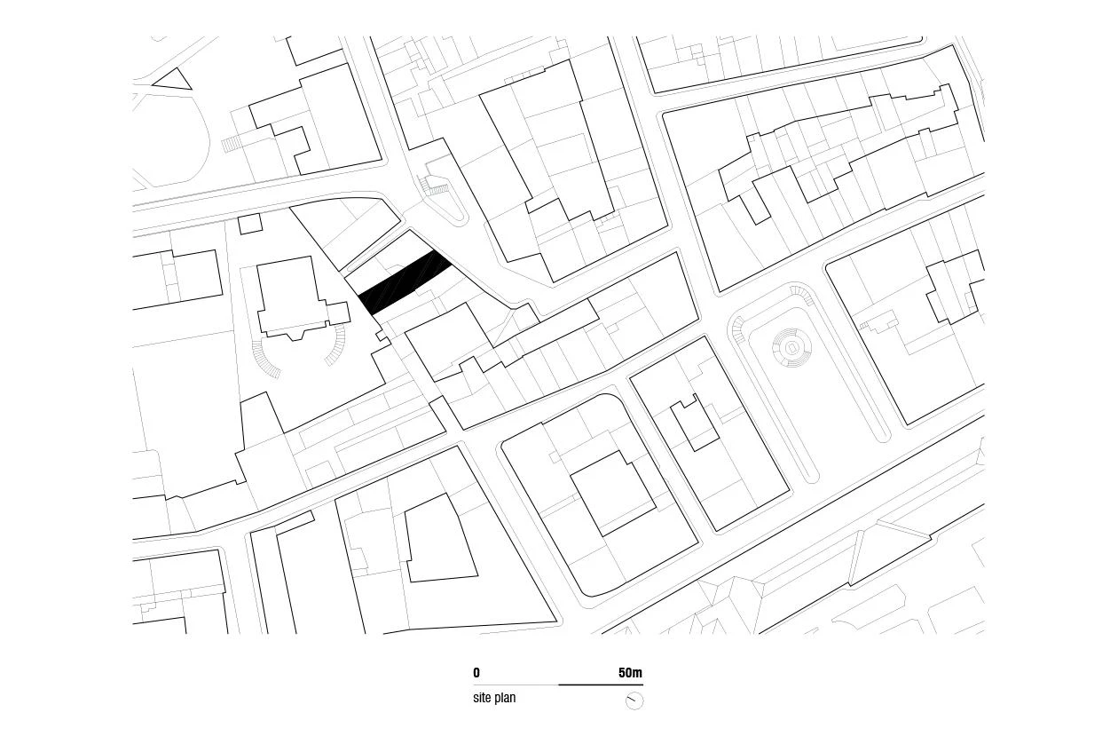
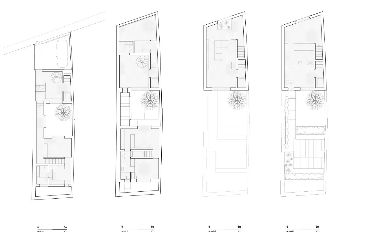
Con un lenguaje contemporáneo y respetando el entorno, esta casa se sitúa en el barrio lisboeta de Lapa, junto al Museu Nacional de Arte Antiga. En una parcela estrecha y alargada, la vivienda presenta una fachada con celosías de madera en las puertas de acceso y del garaje, mientras la parte superior revestida con piezas cerámicas queda recortada por la ventana del comedor y un hueco que alberga vegetación. La casa está compuesta por dos volúmenes que comparten un patio común. La construcción se desarrolla en diferentes direcciones, horizontalmente entre los espacios más privados, como los dormitorios, o verticalmente a través de los espacios comunes, hasta llegar a la cubierta y disfrutar de las magníficas vistas panorámicas sobre el río Tajo.



















