Casa del Chocolate Lindt, Kilchberg
Christ & Gantenbein- Tipo Sede / oficina Comercial / Oficina
- Material Hormigón
- Fecha 2014 - 2020
- Ciudad Kilchberg
- País Suiza
- Fotografía Walter Mair
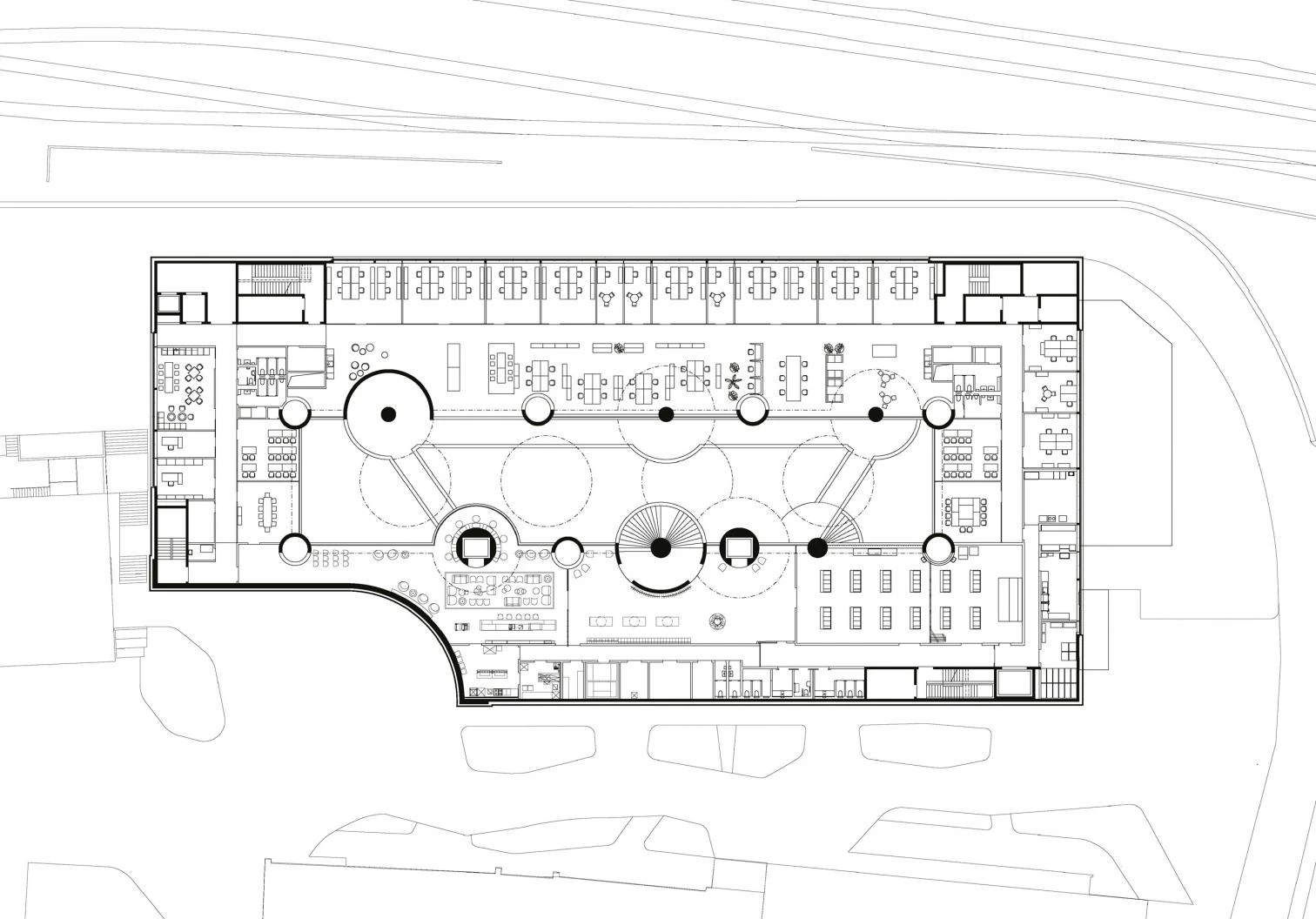
Además de albergar nuevos servicios para la reconocida compañía de chocolates, el proyecto busca generar una experiencia espacial inmersiva y dinámica.
El nuevo buque insignia ocupa un volumen rectangular de ladrillo que reformula la apariencia del complejo industrial chocolatero y se repliega en una esquina para generar una plaza y recibir a los visitantes.
Los diferentes programas de difusión e investigación se organizan en torno a un vacío central de ondulantes formas en el que la gran escala y la desnudez marmórea confieren al ambiente comercial un carácter cívico clásico.







Cliente Client
Lindt Chocolate Competence Foundation
Arquitectos Architects
Emanuel Christ, Christoph Gantenbein (socios fundadores founding partners); Mona Farag (socio partner); Anna Flückiger, Astrid Kühn, Tabea Lachenmann (directores de proyecto project leaders); Javier Bressel, Ana Sofia Costa Guerra, Szabolcs Egyed, Florian Kaiser, Kyrill Keller, Daan Koch, Andrew Mackintosh, Stephanie Müller, Catia Polido, Eileen Davis, Robert Schiemann, Anne Katharina Schulze, Guido Tesio, Leandro Villalba, Jean Wagner, Leonie Welling, Christina Wendler (equipo team)
Consultores Consultants
Conzett Bronzini Partner (estructura structure); Enea (paisajismo landscape); ahochn (instalaciones installations); Feroplan Engineering, Keller Ziegeleien (fachada facade); Bakus Bauphysik & Aktustik (acústica acoustics); Ernst Basler + Partner (ingeniería engineering)
Constratista Contractor
Priora / Eiffage Suisse
Superficie Area
21.540 m²
Fotos Photos
Walter Mair