Casa de fin de semana, Gunma
SANAA- Tipo Casa Vivienda
- Material Acero Metal Acero galvanizado
- Fecha 1997 - 1998
- Ciudad Gunma
- País Japón
- Fotografía Shinkenchiku Sha
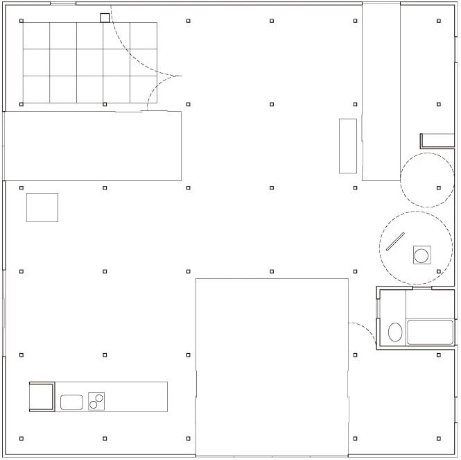
Situada en la prefectura de Gunma, la casa de fin de semana se levanta en un paraje solitario rodeado de bosques de gran belleza. Por razones de seguridad, debido a que se encuentra en una zona solitaria y deshabitada, el volumen se protege con una fachada de chapa ondulada de acero galvanizado lacado con una aleación de aluminio y zinc, en la que se abren unos pocos huecos de pequeñas dimensiones. Con la intención de crear una atmósfera íntima, se ha optado por una construcción aparentemente hermética y encerrada en sí misma empleando la tipología de casa patio.
La vivienda se genera a partir de unidades basadas en una retícula estructural de 2,4 metros que dan lugar a una planta cuadrada de 13 metros de lado sobre la que se disponen tres patios de distintas proporciones. Los tres patios se sitúan tangentes a la piel del cerramiento y se conciben como fragmentos del paisaje que perforan el volumen cuando se abren las puertas que los separan del exterior. A su vez, se cubren con lamas de madera que actúa como sistema de protección solar tamizando la intensidad de la luz y se envuelven con paños de vidrio cuyo reflejo se multiplica en los suelos y techos satinados, inundando el interior con los reflejos verdosos de la vegetación circundante. Tanto el tratamiento de la iluminación indirecta como el empleo de filtros que permiten destilar la luz y las vistas son temas recurrentes que se plantean en la casa tradicional japonesa.
Los propietarios de esta segunda residencia requerían un amplio espacio para exponer la obra artística de su hija. Por esta razón, la casa se ha concebido como un amplio contenedor uniforme en el que la articulación de los espacios se consigue mediante la disposición de los patios que además, proporcionan luz y ventilación natural al interior y favorecen una relación fluida con el entorno. Gracias a ellos ha sido posible delimitar las diferentes estancias en una planta libre carente de obstáculos visuales sin establecer apenas divisiones. La intimidad de las estancias se ha preservado mediante la colocación de cortinas translúcidas que permiten un juego ambiguo de sombras.
Como una metáfora de la arboleda, un bosque depilares se adapta a la cuadrícula soportando únicamente los esfuerzos verticales. Las cargas horizontales, en cambio, son absorbidas por los muros exteriores. El empleo de la madera ha sido determinante a la hora de conseguir la esbeltez de los elementos estructurales y de cerramiento, así como en los acabados interiores, consiguiendo efectos de gran calidez y ligereza espacial.







Arquitecto Architect
Office of Ryue Nishizawa
Colaborador Collaborator
Kimihiko Okada
Consultores Consultants
Structured Environment, Alan Burden (estructura structure); System Design Laboratory, Akiko Sano (instalaciones mechanical engineering)
Contratista Contractor
Niitsu Corporation
Fotos Photos
Shinkenchiku-sha