Casa Atelier Lind, Urmein (Suiza)
Bearth & DeplazesEl proyecto parte de un conflicto de intereses: el presupuesto, muy limitado, sería suficiente para una casa doble con estudio. Sin embargo, el vacío urbano existente requería una pieza voluminosa.
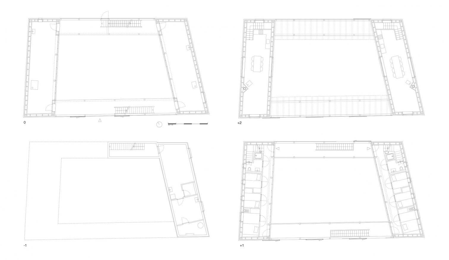
El primer paso es dividir el programa en habitaciones ‘caras’ y ‘baratas’. Las que requieren buen aislamiento en invierno se reducen al mínimo en número y superficie, y el espacio sobrante se añade a la zona común. De ahí surge el concepto de ‘casa de invierno + casa de verano’: la de invierno es un sencillo y cálido refugio; la de verano dispone de amplias terrazas y patios que invitan a pasar tiempo al aire libre. El método de construcción en madera combina a la perfección ambos requisitos: la casa de invierno requiere un buen aislamiento en los elementos de fachada, cubierta y en las ventanas de madera-metal, y una capa aislante de 28cm. La de verano, en cambio, tiene sencillos muros de entramado de madera abiertos por dentro y con revestimiento exterior de abeto rojo.
En cada casa el estudio se sitúa en la primera planta con acceso directo desde el patio. A la vivienda, en la planta superior, se accede a través de una escalera en la galería del patio. Entre ambas plantas hay un piso ciego de dos metros de altura, donde se sitúan los dormitorios, de sólo 4,00 m² y alineados como en un coche cama.







Obra Work
Casa y estudio Lind
Arquitectos Architects
Bearth & Deplazes Architekten
Colaboradores Collaborators
Salzgeber Holzbau AG (planificación estructural, construcción en madera structural planning, timber construction); Martin Kant Bauphysik (física de la construcción building physics)
Superficie Floor area
343 m² (superficie bruta gross area); 243 m² (superficie útil usable floor area)
Fotos Photos
Ralph Feiner