Casa A, Japón
Office of Ryue Nishizawa- Tipo Vivienda Casa
- Fecha 2004 - 2007
- País Japón
- Fotografía Kenichi Suzuki
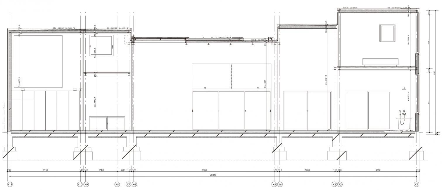
La Casa A se levanta sobre un solar estrecho y alargado dispuesto en dirección norte-sur, típico de las área residenciales que rodean las grandes urbes japonesas. Los requisitos del cliente, que vive solo, incluían un espacio amplio para celebrar fiestas, un cuarto de invitados, un dormitorio principal, una cocina con comedor y un cuarto de baño. Siguiendo una lógica casi inmediata, el programa se distribuye en volúmenes cúbicos repartidos a lo largo del eje longitudinal del solar, cuyas proporciones y alturas se adaptan a su uso específico. La presencia de las casas colindantes sobre los linderos se reduce con un desplazamiento en planta de los cubos, consiguiendo zonas ajardinadas que se intercalan con los volúmenes. Los interiores se abren hacia estos jardines perimetrales con planos de vidrio, y los cambios de altura de la cubierta se cierran con lucernarios. La esbelta estructura, compuesta por pórticos metálicos de perfiles H 100, se vuelve casi imperceptible y permite abrir grandes huecos en todo el perímetro, fusionando el ambiente interior de la casa con su perímetro ajardinado. El volumen central es, de hecho, un gran salón «de sol» de 4,4 metros de altura, en cuya cubierta se abre un lucernario operable, y donde resulta díficil distinguir si el espacio es interior o exterior.









Arquitecto Architect
Office of Ryue Nishizawa
Colaboradores Collaborators
Motoyasu Matsui, Taeko Nakatsubo, Yusuke Ohi, Ippei Takahashi
Consultores Consultants
Sasaki Structural Consultants (estructura structural engineering); System Design Laboratory (instalaciones HVAC engineering)
Fotos Photos
Ken’ichi Suzuki