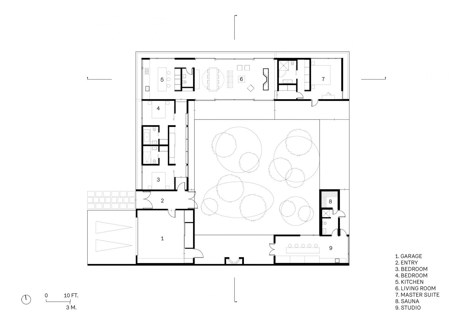
En las estribaciones de las Montañas Rocosas, muy cerca del parque nacional de Yellowstone, las vastas extensiones que se abren en torno a la ciudad de Bozeman han sido contempladas por muchos —y tras la pandemia más aún— como lugar idóneo para escapar del mundanal ruido y disfrutar de las bondades del teletrabajo. En tierra de veranos cortos e inviernos extremos, una casa patio podría parecer desubicada entre las compactas construcciones de la vecindad, pero es la solución adoptada por los arquitectos y al mismo tiempo futuros moradores para abrir la vivienda a las distintas orientaciones y ofrecer amplias vistas de la cordillera sin rehusar la privacidad que ofrece como contrapunto el jardín central.
La casa se asienta en una plataforma de hormigón que, buscando acomodarse a la ligera pendiente, se escalona y crea estancias en la parte más baja con mayor altura libre al mantener el techo invariable su cota. Dos esquemas en L se organizan en esquinas opuestas del patio: el ámbito doméstico, al que se suma un garaje calefactado utilizable como taller, y un pequeño espacio de trabajo con una sauna. Entre ambos, la cubierta plana, compuesta por vigas de madera laminada que se disponen en paralelo a los aleros salvando la luz mayor, guarece dos terrazas, una con una chimenea exterior y otra dominando el paisaje.
Barkow Leibinger. 5280 House, Bozeman Montana












Obra Work
5280 House
Arquitecto Architect
Barkow Leibinger
Frank Barkow, Regine Leibinger
Equipo Team
Frank Barkow (socio partner), Kate Bilyk, Annette Wagner
Consultores Consultants
Bridger Engineers (ingeniería estructural structural engineering); Lillian Montalvo (paisajismo landscape architect)
Contratista Contractor
OSM Construction
Superficie Floor area
315m²
Fotos Photos
Iwan Baan