Tras un periodo de pertinaz decadencia, la Lisboa «antigua y señorial» evocada tópicamente por Amália Rodrigues se ha convertido en un deseado destino que amenaza ya con desbancar a otros focos de obsesión turística como Venecia y Barcelona. Ejemplo inmejorable de esta metamorfosis es la reciente terminación de la gran Terminal de Cruceros en la ribera del estuario del río Tajo, un proyecto a cargo del siempre eficaz y exquisito João Luís Carrilho da Graça.
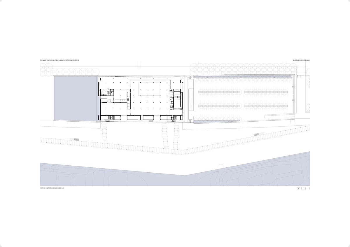
Respetando las vistas sobre la Alfama y los viejos muelles de la ciudad, la terminal toma la forma de un volumen sencillo y compacto de dos plantas de altura, conectado a la red elevada del ferrocarril mediante dos pasarelas peatonales, y cuya escala y color resuenan tanto con el característico perfil de la ciudad como con los no menos característicos colores de Lisboa. Carrilho da Graça Fernando Guerra fg+sg Rita Burmester

.webp?h=e5c04a3c)















